Продажа / Покупка: Продается дом д. Дроздово, Варшавская ул., д. Дроздово,
- Площадь участка: 15.18 соток
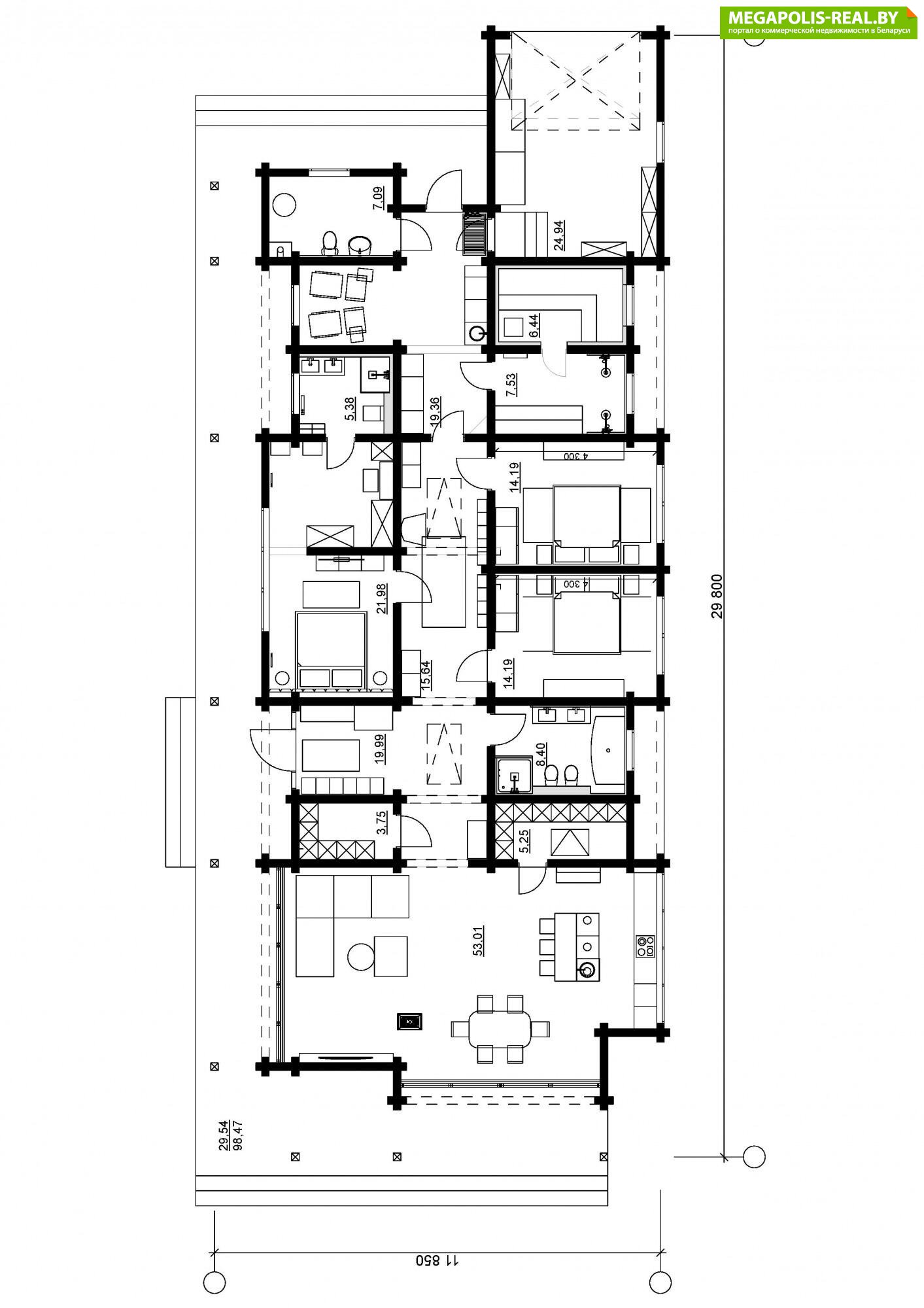
- Площадь дома: 350 м2
- Год постройки: 2019
Продается красивый, уютный, дом в Дроздово!
Дом расположен так что наполнен светом весь день!!! Чистый воздух, живописное место, крайняя улица у леса, много зелени, все это создает чувство единения с природой!!! Продуманная и функциональная планировка, высокие потолки, большие окна выходят на лес и дают много света, создавая теплую атмосферу. уютная гостиная с каминной зоной, большая кухня и столовая с выходом на террасу, 3 просторные спальни, просторный холл, два санузла, большая гардеробная.
Общая площадь 350м, жилая 255
Готовность дома 50%. При строительстве заливался монолитный фундамент, стены изготовлены по финской технологии из клееного бруса, фальцевая кровля.
Дом расположен на ровном участке размером 15 соток, земля в частной собственности.
Прекрасные подъездные пути, 1 км до Минска.
Хорошо развита инфраструктура: магазины, школа, детский сад
Приглашаем на просмотр и покупку!!!
Лицензия: №02240/362 от 31.07.2018, Министерство юстиции РБ
- Регион: Минск и район
- Населенный пункт: д. Дроздово
- Направление от МКАД: Логойское
- Расстояние до МКАД: 31-50 км
- Адрес: Варшавская ул.
- Контактное лицо: Фаттория Плюс
- Телефон: +375 29 122-00-88
- Телефон: +375 29 122-00-88














в избранное








































