Продается квартира по адресу Авиационная ул. д. 19, д. Копище
- Количество комнат: двухкомнатная
- Этаж: 13 этаж из 17
- Санузел: раздельный
- Планировка: новостройка
- Год постройки: 2022
В продаже прекрасная двухкомнатная квартира в Новой Боровой, д. Копище, ул. Авиационная, 15.
Дом расположен в квартале Центральный Парк. В квартире возведены стены как на фото №8, проведена сантехника, установлена инсталляция, фильтры, нагреватель.
Характеристики квартиры:
Дом 2022 года.
Квартира расположена на 13 этаже 17 этажного дома.
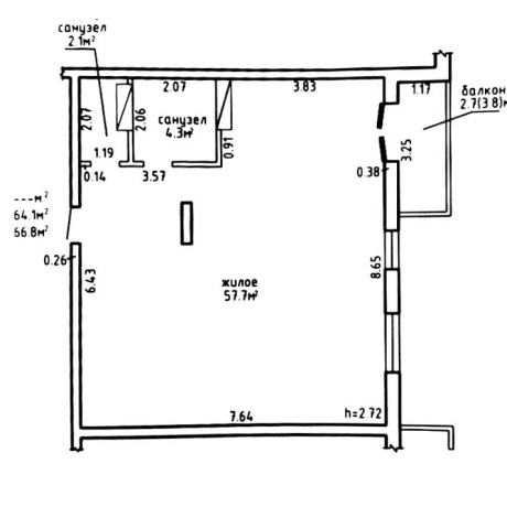
Площадь по СНБ 66,8 м2. Жилая площадь 57,7 м2.
Высота потолка: 2,72 м
Двор по периметру квартала огорожен еврозабором высотой 1,6 м, предусмотрено устройство системы контроля доступа с помощью чип-ключа.
Закрытый двор без автомобилей .
Прямо у вас во дворе:
- Детские площадки, зона барбекю, спортивная зона
- Беседка для отдыха и беседка-уличный офис
– Велобоксы
- Мини-огородик
По периметру дома и квартала устанавливаются видеокамеры в соответствии с концепцией безопасности района, а также предусматриваются видеокамеры на 1 этаже в подъезде и в кабинах лифтов.
Всё необходимое для комфортной жизни в шаговой доступности от дома: уютные кафе и пекарни, салоны красоты, различные магазины, аптеки, детские сады, школа, центр развития для детей, спорткомплекс с бассейном и сауной и многое другое.
До станций метро «Уручье» и «Восток» можно добраться на автобусе или маршрутке!
Удобный выезд на МКАД.
Поддерживаем вас на каждом этапе сделки: консультация, оформление кредита, содействие в реализации вашей недвижимости для приобретения этой квартиры.
Позвоните нам, узнайте подробности и приходите на просмотр своей будущей любимой квартиры!
Ваш комфорт начинается именно здесь.
Лицензия: 02240/446 от 11.07.2022, Министерство юстиции РБ
- Регион: Минск и район
- Населенный пункт: д. Копище
- Жилой комплекс: Новая Боровая
- Микрорайон: Новая Боровая
- Адрес: Авиационная ул. д. 19
- Контактное лицо: Галина
- Телефон: +375 29 675-75-19
- Телефон: +375 29 675-75-19
- Продажа квартиры


в избранное


















