Продается квартира по адресу Металлургическая ул. д. 6, аг. Гатово
- Количество комнат: двухкомнатная
- Этаж: 5 этаж из 5
- Санузел: раздельный
- Год постройки: 1976
Продается светлая, прекрасная 2-х ком. квартира с отличным ремонтом, в ближайшем пригороде Минска, в аг. Гатово, на ул. Металлургическая, д. 6, 7 км от Минска.
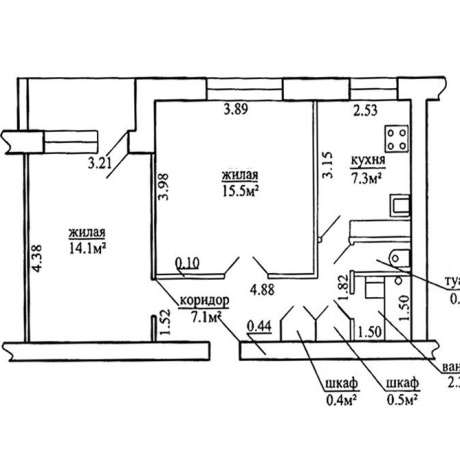
Площадь квартиры 48,1, жилая 29,6, кухня 7,3 кв.м
Хорошая и удобная планировка, все комнаты раздельные, установлены стеклопакеты ПВХ и в лоджии. Светлые комнаты создадут, ощущения легкости и уюта!!!! Удобная кухня с бытовой техникой, раздельный с/у аккуратно отделаны плиткой!!!!! В квартире ничего делать не надо !!! Заезжай и живи!!!!!!!!
Аккуратный подъезд, тихий и уютный двор с парковочной зоной. Обжитый район с развитой инфраструктурой: Школа, ясли-сад №1, поликлиника, магазины Хит, Мила, Соседи, Три цены, Wildberries, магазин стройматериалов, дом быта, аптека, отделения банка и почты, Святодухов храм и Костел св. Михаила. Рядом лес и озеро
Отличное транспортное сообщение: остановки общественного транспорта рядом с домом, прямой выезд на МКАД и МКАД2. Городские маршруты автобусов: каждые 10 мин. 85 и 108 автобус до ж/д вокзала и станции метро Могилевская, маршрутное такси каждые 20 мин.
Приглашаем вас на просмотр !!!
Лицензия: №02240/362 МЮ РБ, 31.07.2018
- Контактное лицо: Фаттория Плюс
- Телефон: +375 29 122-13-70
- Телефон: +375 29 122-13-70
- Продажа квартиры


в избранное
























































