Продается квартира по адресу Кропоткина ул. д. 59, г. Минск
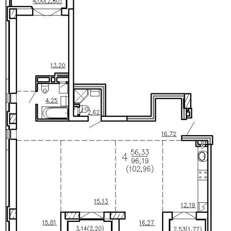
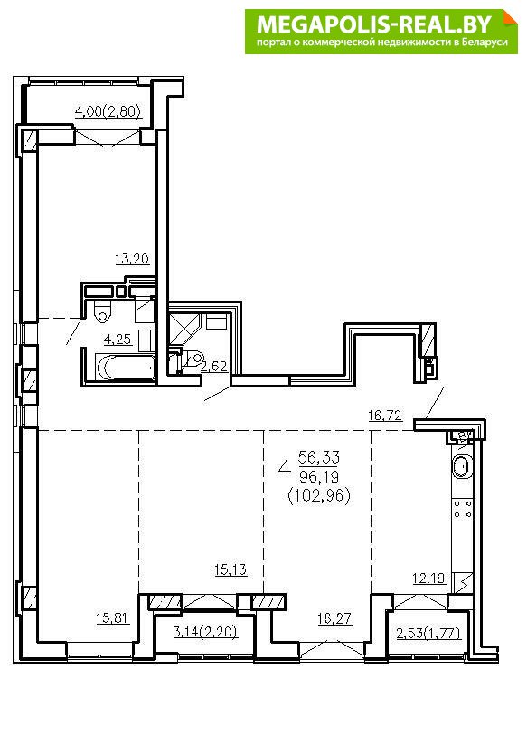
- Количество комнат: четырехкомнатная
- Этаж: 11 этаж из 15
- Санузел: раздельный
- Планировка: новостройка
- Год постройки: 2022
Продается светлая, просторная 4-х комнатная квартира ( 101.2 кв.м. по СНБ) на 11 этаже в доме в жилом комплексе премиум-класса «Фарфоровый» в центре Минска. ЖК «Фарфоровый»: современная комфортная безопасная жилая среда, пешеходный квартал с собственной инфраструктурой. Уникальная стильная оригинальная архитектура: комплекс строится по индивидуальным проектам зданий, квартир, лобби, мест общего пользования, благоустройства территории, бульвара, выполненным известными архитекторами, градостроителями, дизайнерами. Комплекс укомплектован собственным социальным пакетом: детский сад; СПА-центр; кафе; фитнес; встроенные помещения с услугами для жильцов комплекса (кофейня, салон красоты, косметология, стоматология, тренажерный зал и прочие); бизнес-центры; продуктовый магазин; 4 подземных паркинга общей вместимостью 760 машиномест, из которых обзорные лифты с панорамными видами поднимают прямо в квартиры и офисы; детские площадки для разных возрастов; благоустроенный бульвар внутри комплекса. Комплекс расположен в престижном районе тихого центра столицы. В пешей доступности парк Победы, набережная реки Свислочь и Комсомольское озеро. Территория комплекса является безопасной и полностью свободна от транспортного движения и парковок автомобилей. В квартире установлены импортные двухкамерные стеклопакеты REHAU с энергосберегающими и солнцезащитными стёклами. Алюминиевые витражи из профиля ALUTEX с высококачественной фурнитурой. Французские балконы, витражные стены и лоджии. Дизайнерские квартирные металлический двери с модной фурнитурой. Высокие потолки – 3 м. Многослойные стены и перекрытия обеспечат хорошую шумоизоляцию. Увеличенные оконные проёмы размером 1,8 х 1,7 метра (высота) с заниженным подоконником начинаются на уровне 70 см, имеют неоткрывающуюся нижнюю фрамугу высотой 40 см. Вентилируемый фасад из крупноразмерных фиброцементных плит и керамогранита. Наличие подземного паркинга, из которого можно сразу подняться в квартиры. Фирменная приточно-вытяжная вентиляция Komfovent с рекуперацией тепла. В просторном холле подъезда, с индивидуальным дизайном, предусмотрены места для консьержей, санузел, зеркала. Техническое обеспечение дополнительных возможностей комфортного уровня обслуживания и безопасности (запас ТУ для зарядки электромобилей, возможность подключения систем видеонаблюдения и т.п.). Уникальные турецкие лифты HAS с обзорной стеной, через которую открывается панорама комплекса и всего города. На входе фейс-айди домофон. Эстетика и единый стиль прослеживается в каждой мелочи. В квартире. Два раздельных санузла, 3 лоджии с остеклением. Выполнена предчистовая отделка: на полу стяжка, стены оштукатурены, разведена электрика, телевидение, домофон, противопожарная система, телефонная сеть, видеонаблюдение, вентиляция, установлены розетки и выключатели, в санузлах установлены унитазы, счетчики воды. Лицензия: №02240/362 от 31.07.2018, Министерство юстиции РБ
- Регион: Минск и район
- Населенный пункт: г. Минск
- Жилой комплекс: Фарфоровый
- Микрорайон: Червякова, Шевченко
- Адрес: Кропоткина ул. д. 59
- Район: Центральный
- Контактное лицо: Агент
- Телефон: +375 29 615-68-40
- Телефон: +375 29 615-68-40
- Продажа квартиры


в избранное

























































































