Продается квартира по адресу морской риф 5, Ратомка
- Количество комнат: четырехкомнатная
- Этаж: 7 этаж из 7
- Тип жилья: первичное
- Тип дома: панельный
- Ремонт: без отделки
- Санузел: 2 сан.узла
- Планировка: свободная
- Балкон: 2 лоджии
- Парковка: уличная
- Год постройки: 2020
Вашему вниманию продажа видовой квартиры с удачной локацией и целым рядом своих преимуществ:
· квартира выбиралась и строилась для себя, как прекрасное и продуманное место для жизни;
· разработаны дизайнерский и архитектурный проекты, учитывающие все требования и пожелания владельцев квартиры – совместные усилия длиною около года;
· дизайн проект создан с учетом традиционной индуистской системы архитектурного планирования и дизайна Васту (подробнее по ссылке: https://goo.su/hu11n), в стяжку по данной системе заложены медные спирали, камни, рубины для благоприятного течения энергии;
· действующая, зарекомендовавшая себя бригада строителей, мебельщиков, кухонщика. Все контакты, наработки и проекты, авторское сопровождение дизайнера будут переданы новым владельцам;
На сегодняшний день произведены следующие строительные работы:
1. Возведена дополнительная антресоль из металлоконструкций для размещения рабочего кабинета и гардеробной комнаты;
2. Сделана вся разводка электрики по проекту (продумано всё до мелочей: 29 предохранителей, множество розеток, бесперебойник на уровне входа в квартиру, управление тёплыми полами и многое другое);
3. Сделана разводка под 5 кондиционеров с установкой блоков на крыше;
4. Оштукатурена необходимая часть стен по дизайн-проекту;
5. Участки полов под паркет и пробку залиты полимерным самонивелиром.
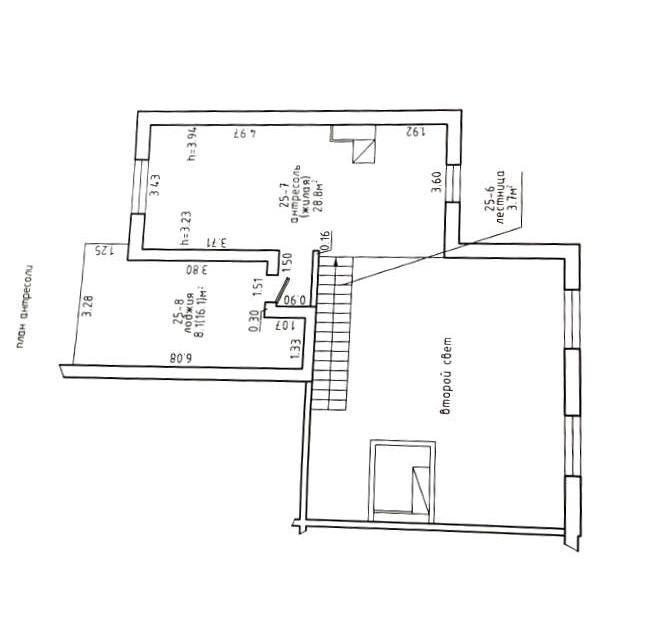
Проектная площадь квартиры после перепланировки – 151,23 кв.м., первоначальная – 118,0 кв.м. по СНБ. Узаконивание новой планировки уже нанятым специалистом будет производиться после возведения стен в санузлах по проекту и поставлена сантехника, согласно предпочтений нового владельца. По проекту уже утеплённые лоджии могут быть застеклены и использованы как полноценные комнаты (столовая на первом этаже и комната отдыха на втором).
Из лоджий 7-го и 8-го этажа открываются прекрасные обзорные виды на лесной массив и аг. Ратомка (см. фото).
О самом жилом комплексе и инфраструктуре можно долго рассказывать, поэтому лучше увидеть всё своими глазами, Вы будете приятно удивлены. Приглашаем на просмотры!
Наше предложение может стать прекрасным местом для Вашей новой качественной и счастливой жизни!
- Контактное лицо: Александр
- Телефон: +375 44 525-32-71
- E-mail: info@a-estate.by
- Телефон: +375 44 525-32-71
- Продажа квартиры
- Условия продажи: чистая продажа
- Собственность: частная


в избранное





































































































