Многофункциональный комплекс «Славянский квартал» - Минск, Победителей 27
«Славянский квартал» решен как комплекс многоуровневых разновысотных и мультифункциональных зданий, не имеющий на сегодняшний день аналогов в городе. Он стал заметным явлением в формировании современного архитектурного облика столицы.
Главная особенность «Славянского квартала» — уникальность, даже некоторая эксклюзивность места расположения. «Славянский квартал» располагается на пересечении центральных городских магистралей — проспекта Победителей и проспекта Машерова (пр.Победителей, 27), рядом с любимым многими минчанами парком Победы, раскинувшимся вокруг Комсомольского озера и набережной Свислочи, историческим центром столицы — Троицким предместьем и Верхним городом. Здесь сохранился местный и исторический колорит, витает дух времени. Респектабельность этого района, близость к центру, высокие для мегаполиса экологические показатели и великолепный природный ландшафт делают его наиболее перспективным для неординарного жилья и коммерческой недвижимости.
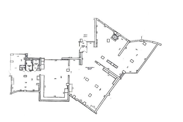
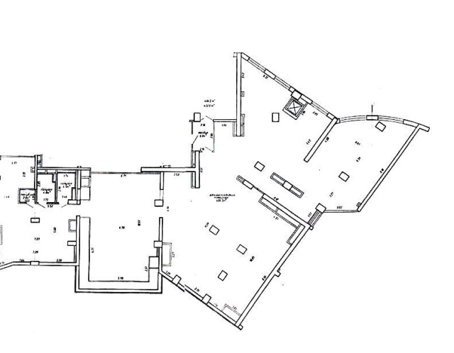
Подробнее...- Общая площадь: 11500 м2
- Год постройки: 2012
- Интернет: есть
- Телефония: есть
- Емкость парковки: 4 уровня (474 м/м)
- Отделение банка: БСБ Банк
- Регион: Минск и район
- Населенный пункт: Минск
- Район: Центральный
- Адрес МФК: Победителей 27
- Метро: Фрунзенская




в избранное

























































































