Продажа / Покупка: Продается коттедж д. Лабенщина, д. Лабенщина,
- Площадь участка: 10 соток
- Площадь дома: 323.5 м2
- Год постройки: 2019
Предлагается к продаже двухуровневый коттедж с цокольным этажом, расположенный в живописной деревне Лабенщина, всего в 17 км от МКАД по Молодеченскому направлению.
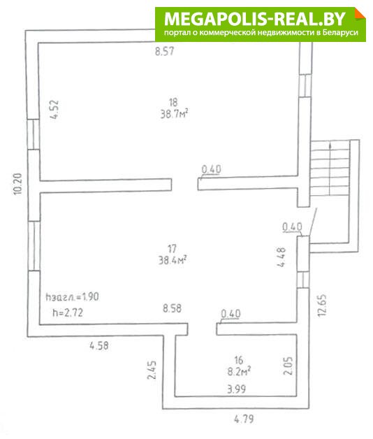
Общая площадь дома составляет 323.5 кв. м., наружная – 160 кв. м.
На первом этаже располагается просторная гостиная с кухонным оборудованием и выходом на террасу, гостевая комната, санузел и гардеробная. Второй этаж включает в себя четыре спальни и санузел.
Высота потолков – 2.7 м.
Дом построен с использованием надежных материалов: цокольный этаж выполнен из ФБС, крыша покрыта металлочерепицей, установлены окна и двери ПВХ.
К дому подведено электричество 220/380 В, вода из скважины заведена в дом. Газ проходит по соседней улице. Имеется трансформаторная подстанция на два дома.
Участок площадью 0.1018 га находится в частной собственности.
Неподалеку находятся озеро и лес. В 3 км расположен город Заславль с развитой инфраструктурой.
- Регион: Минск и район
- Населенный пункт: д. Лабенщина
- Район: Минский
- Направление от МКАД: Молодеченское
- Расстояние до МКАД: 11-30 км
- Контактное лицо: Александр
- Телефон: +375 29 622-80-91
- Телефон: +375 29 622-80-91









в избранное
























































