Продажа / Покупка: Продается коттедж с/т. Мара-Росинка, с/т. Мара-Росинка,
- Площадь участка: 7.8 соток
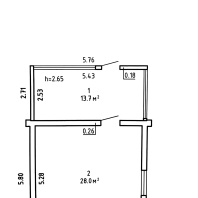
- Площадь дома: 41.7 м2
- Год постройки: 2020
Продается дача, которая находится в перспективном С/Т "Мара-Росинка. Расстояние до МКАД 20 км. Дом 2019 года постройки из бревна ручной рубки 24-32 см в диаметре. Дом новый, никто не жил!
Данное С/Т относительно новое, значительная часть дачников живет здесь на постоянной основе. Состоит С/Т из 8 улиц и 211 участков. На многих улицах капитальная коттеджная застройка, обычные дачные домики практически отсутствуют. Садовое товарищество "Мара-Росинка" одно из немногих, которое обеспечено газом. Что самое главное, организовано центральное водоснабжение, есть оптоволокно.
Участок 7,80 сотки в частной собственности, огорожен новым забором. Плодородная земля, плодовые деревья и кустарники.
Строили для себя, соблюдены все технологии строительства деревянных домов. Крыша металлочерепица, окна ПВХ. Первый этаж готов для проживания. На участке есть хозблок (вагончик).
Отдельное преимущество: рядом лес для прогулок и отдыха, всего 1,5 км до прозрачных Заславских озёр, благоустроенный пляж с детскими площадками.
Подъезд к СТ полностью асфальтирован, что обеспечивает удобное и безопасное транспортное сообщение. Остановка автобуса до Заславля и Минска, рядом с которой расположен большой магазин Светофор.
Лицензия: №02240/362 МЮ РБ, 31.07.2018
- Регион: Минск и район
- Населенный пункт: с/т. Мара-Росинка
- Район: Минский
- Контактное лицо: Фаттория Плюс
- Телефон: +375 29 641-80-40
- Телефон: +375 29 641-80-40








в избранное

















