Продается квартира по адресу Морской Риф ул. д. 3, аг. Ратомка
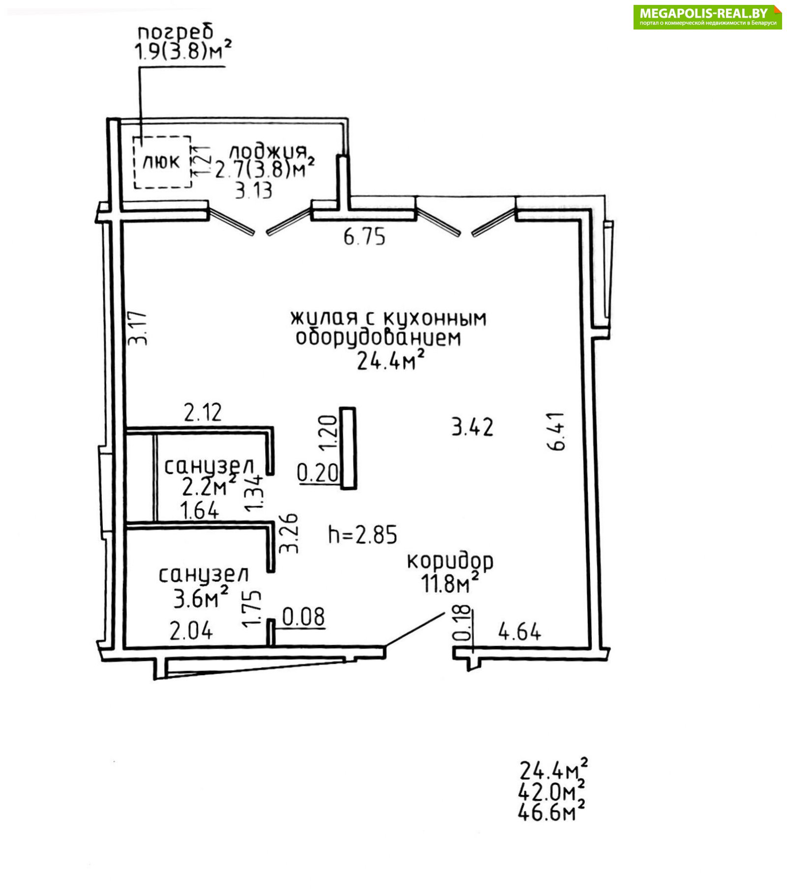
- Количество комнат: однокомнатная
- Этаж: 1 этаж из 7
- Санузел: раздельный
- Планировка: повышенной комфортности
- Год постройки: 2019
Предлагаем вашему вниманию, уютную, стильную, большую квартиру-студию 46,6 м2 по СНБ в премиальном комплексе ЖК «Пирс», а/г Ратомка
Ключевые преимущества вашего будущего дома: ·
Дом премиум-класса в охраняемом парке у Минского моря.
7 минут до Минска
Закрытая территория, видеонаблюдение, артезианская вода.
Вся инфраструктура внутри: магазин, кафе, сад, школа, спорт.
Зоны для отдыха с барбекю и беседками.
О квартире, в которой вы будете жить:
Квартира с качественным ремонтом, раздельным санузлом и панорамной лоджией.
· Площадь: 46,6 м2 — просторная и функциональная студия.
· Качественный ремонт, все продумано до мелочей, квартира готова к проживанию.
· Застекленная в пол лоджия — светлая зона с прекрасным видом и дополнительным уютом, для утренних и вечерних чаепитий.
Вся мебель и техника остается новому собственнику, вам нужно будет только заехать и жить.
Идеальный выбор для тех, кто ценит тишину, природу, безопасность и развитую инфраструктуру. Прекрасное инвестирование. Показ в любое удобное время. Рассмотрим все варианты кредитования.
Лицензия: 02240/446 от 11.07.2022, Министерство юстиции РБ
- Контактное лицо: Виталий
- Телефон: +375 29 323-92-03
- Телефон: +375 29 323-92-03
- Продажа квартиры


в избранное









































