Продается квартира по адресу Слесарная ул. д. 4, г. Минск
- Количество комнат: однокомнатная
- Этаж: 5 этаж из 5
- Санузел: раздельный
- Год постройки: 1963
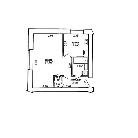
1-комнатная квартира в кирпичном доме в центре Минска! Квартира хороша как для проживания так и для сдачи в аренду.Квартира находится на пятом этаже пятиэтажного кирпичного дома 1963 г. п. Капитальный ремонт выполнен в 2009 г. Дом утеплен. Кирпичные стены хорошо держат тепло в холодное время и не нагреваются в жару. Отличная шумоизоляция. Окна выходят во двор.Общая площадь - 30 м2, комната -17,8 м2, кухня -5,9 м2. Без балкона. В квартире выполнен современный ремонт. Встроенная кухня с техникой. В санузле -плитка, стиральная машина. На полу уложен ламинат, потолки -натяжные. Стеклопакеты.Металлическая дверь.Квартира продается с мебелью и техникой.Квартира расположена рядом с парком им. М. Горького, набережной р. Свислочь. Отличная транспортная доступность: рядом остановка автобуса и трамвая, станции метро Пролетарская, Первомайская или пл. Победы.
Дом находится в давно обжитом районе, есть все необходимое для жизни: гимназия № 7, школы № 4, № 10, дошкольный центр развития ребенка № 26, ясли-сад № 442, детский сад № 260, № 239. Лицей Белорусского государственного университета. Магазины, ТЦ, кафе, салоны красоты, аптеки, поликлиники.
Рядом всегда есть парковочные места. Возможна эффективная быстрая продажа Вашей квартиры в связи с покупкой этой.
Лицензия: №02240/362 от 31.07.2018, Министерство юстиции РБ
- Регион: Минск и район
- Населенный пункт: г. Минск
- Микрорайон: Пулихова
- Адрес: Слесарная ул. д. 4
- Метро: Первомайская
- Район: Партизанский
- Контактное лицо: Ирина
- Телефон: +375 29 374-04-90
- Телефон: +375 29 374-04-90
- Продажа квартиры


в избранное






























































































