Продается квартира по адресу Бурдейного ул. д. 35, г. Минск
- Количество комнат: двухкомнатная
- Этаж: 7 этаж из 12
- Санузел: раздельный
- Год постройки: 1986
Квартира, в которой приятно жить: светлое пространство, идеальный ремонт и шаг до метро
Представьте себе квартиру, куда приятно возвращаться после рабочего дня.
Где все уже сделано за вас: ровные стены, новый ламинат, свежая плитка и теплый застекленный балкон для вечернего чая.
Где можно просто завезти вещи — и сразу начинать жить с комфортом.
Эта 2-комнатная квартира на ул. Бурдейного, 35 в г. Минске — именно такой вариант.
Почему эта квартира станет вашим удачным выбором:
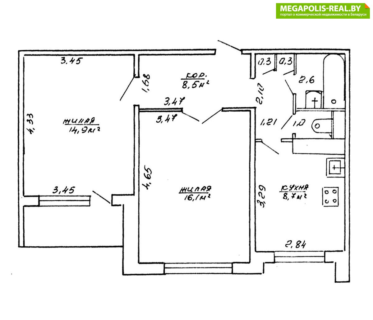
• Площадь 52,4 м2 по СНБ — продуманное пространство, которое легко адаптировать под любой образ жизни.
Отдельная кухня 8,7 м2 и две раздельные комнаты 16,1 и 14,9 м2 позволяют каждому члену семьи иметь свое личное место.
• Ремонт, сделанный качественно и “для себя”.
Ламинат и плитка на полу, аккуратная плитка в санузлах, установлен бойлер, замененная проводка, трубы и батареи — всё, что обычно требует вложений, здесь уже выполнено.
Балкон утеплен и застеклен — отличное место для отдыха или рабочего уголка.
• Полная готовность к проживанию.
Заезжайте и наслаждайтесь — дополнительных вложений не потребуется.
Локация — одна из лучших в районе:
Дом стоит в зеленом тихом дворе с большим количеством парковочных мест — редкость для города.
В пешей доступности станции метро Кунцевщина и Каменная горка (10 минут), что делает передвижение по городу быстрым и удобным.
Рядом всё, что нужно для комфортной жизни: рынок Раковский Кирмаш, ТЦ Скала, Тивали, Green City, Материк, школы, детские сады, банки, почта, фитнес-клубы.
Есть удобный выезд на МКАД — легко добраться в любой район.
Это квартира для тех, кто хочет жить в месте, где всё под рукой: транспорт, магазины, школы, тишина двора и готовое жилье без хлопот.
Хотите увидеть её вживую? Позвоните и приезжайте — уверены, квартира понравится вам ещё больше при просмотре.
Лицензия: №02240/362 МЮ РБ, 31.07.2018
- Регион: Минск и район
- Населенный пункт: г. Минск
- Микрорайон: Запад
- Адрес: Бурдейного ул. д. 35
- Метро: Кунцевщина
- Район: Фрунзенский
- Контактное лицо: Елена
- Телефон: +375 33 630-67-67
- Телефон: +375 33 630-67-67
- Продажа квартиры


в избранное















































