Продается квартира по адресу Цнянская ул. д. 25, г. Минск
- Количество комнат: двухкомнатная
- Этаж: 3 этаж из 5
- Санузел: раздельный
- Год постройки: 1970
Предлагается к покупке двухкомнатная квартира по ул. Цнянская, 25!
Квартира расположена на третьем этаже пятиэтажногокирпичного дома.
Квартира светлая, уютная с рациональной планировкой:
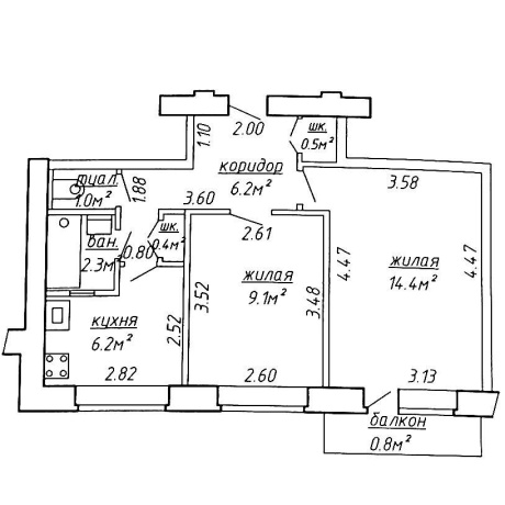
две отдельные комнаты 9.1 кв.м, 14.4 кв.м. с выходом на балкон. Коридор 6.2 кв.м. Кухня 6.2 кв.м. Раздельный санузел.
Окна ПВХ, балкон остеклен.
Чистый аккуратный подъезд. Спокойные соседи!
Ухоженная придомовая территория.
Оборудована современная детская игровая площадка.
Достаточно мест для парковки автомобилей.
Развитая инфраструктура.
В шаговой доступности от дома расположены продуктовые магазины, супермаркеты, торговые центры, кафе, детские сады, школы, банковское и почтовое отделения, поликлиника и другое.
Не далеко от дома есть замечательное место для отдыха и прогулок-
Парк "Уго Чавеса".,
Отличное транспортное сообщение. Ближайшая станция метро «Каменная горка». Удобный выезд на МКАД.
-.Поможем с продажей Вашей квартиры для приобретения этой!
Приглашаем на просмотр в удобное для вас время!
Торг уместен!
Лицензия: №02240/362 МЮ РБ, 31.07.2018
- Регион: Минск и район
- Населенный пункт: г. Минск
- Микрорайон: Комаровка
- Адрес: Цнянская ул. д. 25
- Метро: Академия наук
- Район: Советский
- Контактное лицо: Марина
- Телефон: +375 29 193-88-72
- Телефон: +375 29 193-88-72
- Продажа квартиры


в избранное















































