Продается квартира по адресу Куприянова ул. д. 7, г. Минск
- Количество комнат: двухкомнатная
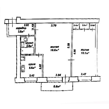
- Этаж: 2 этаж из 5
- Санузел: раздельный
- Год постройки: 1966
В продаже двухкомнатная квартира в одном из востребованных районов Минска по ул. Куприяного, 7. Микрорайон с развитой инфраструктурой.Площадь квартиры по СНБ: 45м2Этаж: 2 из 5Санузел совмещённый. Год постройки: 1966 — надёжный кирпичный дом, отличная тепло- и звукоизоляцияОкна: стеклопакетыЖилое состояние, всё, что на фото — остаётся
Тихий, зелёный район с малоэтажной застройкой — настоящая городская редкость. Расположение в центре Минска делает его уникальным. Кругом деревья и парки - Лютеранский сквер и Маломедвежинский сквер с прудом и утками, зоной для барбекю - все для поддержания душевного и физического благополучия.
Метро — 12-15 минут пешком до станции «Молодёжная» и метро «Площадь Франтишка Богушевича».
Рядом всё для комфортной жизни: школы, детсады, поликлиника, круглосуточный гипермаркет, новый бассейн международного уровня, автомойка.Чистая продажа, в квартире никто не зарегистрирован, ключи в день сделки!!!Отличная инвестиция: квартира легко сдаётся, востребованный район с развитой инфраструктурой, чистый воздух и обилие зелени.Квартиру можно купить в кредит, а также мы поможем с продажей вашего объекта недвижимости для покупки данной квартирыЗвоните прямо сейчас и записывайтесь на просмотр.
Лицензия: 02240/446 от 11.07.2022, Министерство юстиции РБ
- Регион: Минск и район
- Населенный пункт: г. Минск
- Микрорайон: Р. Люксембург
- Адрес: Куприянова ул. д. 7
- Метро: Молодежная
- Район: Московский
- Контактное лицо: Фаттория
- Телефон: +375 29 190-00-88
- Телефон: +375 29 190-00-88
- Продажа квартиры


в избранное














































