Продается квартира по адресу Нововиленская ул. д. 51, г. Минск
- Количество комнат: двухкомнатная
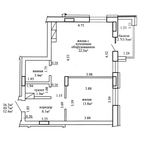
- Этаж: 3 этаж из 9
- Санузел: раздельный
- Планировка: новостройка
- Год постройки: 2024
Двухкомнатная квартира в ЖК Левада в стиле современной классики с видом на Свислочь!
По адресу: ул. Нововиленская, 51
Площадь по СНБ 52,4 м2 Общая площадь 50,1 м2 Просторная кухня - гостиная 22,5 м2 с двумя окнами и выходом на лоджию, откуда открывается вид на Свислочь и набережную реки Комфортный 3 этаж Современный качественный ремонт: Стены выкрашены немецкой краской. Импортная плитка, с заполнением швов эпоксидный фугой, которая со временем не меняет свой цвет
Двери МДФ. Продуманное освещение с дизайнерскими светильниками.
Функциональная кухня ЗОВ, с фасадами из крашеного МДФ, оборудована импортной техникой: холодильник LIEBHER, духовой шкаф и
посудомоечная машина BOSCH. Мощная вытяжка. В ванной: столешница - из компакт плиты, тумба выполнена из крашеного МДФ-
материалов устойчивых к влаге. Все сделано с любовью и для себя!
В подвальном помещении есть кладовое помещение с уже установленными полкам Непосредственная близость дома №51 к набережной реки и прогулочной зоне Парка Победы Каркасно-блочный дом 2024 года постройки Престижный ЖК класса КОМФОРТ на берегу реки Свислочь в Центральном район
ЖК Левада — престижный и современный комплекс, представляющий малоэтажную застройку (от 4 до 9 этажей), состоящую из 25 жилых домов, созданных в едином стиле в г. Минске на живописном берегу реки Свислочь, расположенной вдоль улицы Нововиленская. В непосредственной близости от парка Победы и пляжа Комсомольского озера. ТЦ «Замок находится в 20 минутах ходьбы. Территория комплекса оформлена в едином ландшафтном дизайне. Прекрасно оборудованные дворы с детскими и спортивными площадками, с закрытым доступом, предназначенные только для жильцов. Сквозные подъезды. Круглосуточное видеонаблюдение. Магазин «Соседи» Милые кофейни и респектабельные соседи.
Спокойствие, респектабельность и комфорт для Вас и Вашей семьи! Выбирайте лучшее!
Лицензия: №02240/362 МЮ РБ, 31.07.2018
- Регион: Минск и район
- Населенный пункт: г. Минск
- Жилой комплекс: Левада
- Микрорайон: Старовиленский
- Адрес: Нововиленская ул. д. 51
- Район: Центральный
- Контактное лицо: Фаттория Плюс
- Телефон: +375 29 122-00-88
- Телефон: +375 29 122-00-88
- Продажа квартиры


в избранное











































