Продается квартира по адресу Плеханова ул. д. 121, г. Минск
- Количество комнат: двухкомнатная
- Этаж: 7 этаж из 9
- Санузел: раздельный
- Год постройки: 1975
Предлагаем к продаже 2 комнатную квартиру, готовую к комфортному проживанию.
Ул. Плеханова 121.
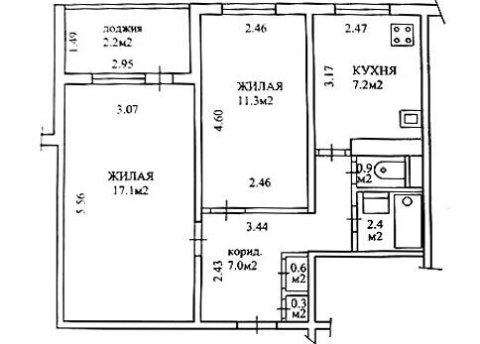
Квартира теплая, светлая, расположена на 7 этаже.Отличная планировка: общая площадь СНБ 49 кв.м.- изолированные комнаты (17, 1 м и 11,3 м)- квадратной формы кухня 7,2 м- застекленная лоджия. - раздельный санузел.Хороший ремонт.
Чистый подъезд, доброжелательные соседи. Спокойный, обжитый район, зеленый двор. Рядом все, что нужно для комфортной жизни и разнообразного досуга: детские сады и школы, поликлиника, почта, банк, магазины и торговые центры.Отличное транспортное сообщение: маршрутки, большое количество общественного транспорта.Идеально подходит для жизни; ликвидно для сдачи в аренду - грамотная и выгодная инвестиция!Полное юридическое сопровождение сделки. Приглашаем на просмотр. Вам непременно понравится!
Лицензия: №02240/362 МЮ РБ, 31.07.2018
- Регион: Минск и район
- Населенный пункт: г. Минск
- Микрорайон: Серебрянка
- Адрес: Плеханова ул. д. 121
- Метро: Партизанская
- Район: Ленинский
- Контактное лицо: Наталья
- Телефон: +375 29 629-63-81
- Телефон: +375 29 629-63-81
- Продажа квартиры


в избранное

















