Продается квартира по адресу Плеханова ул. д. 32 к. 2, г. Минск
- Количество комнат: двухкомнатная
- Этаж: 1 этаж из 9
- Санузел: раздельный
- Год постройки: 1978
2-х комнатная квартира с капремонтом дома в г. Минск, ул. Плеханова, 32/2
Продаётся светлая и уютная квартира в одном из самых удобных и экологичных районов Минска – Серебрянка.
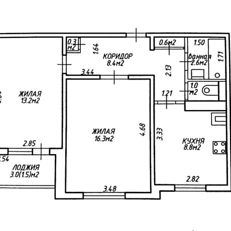
Квартира Чешской планировки:
Площадь по СНБ – 51,7 м. кв. (с учетом лоджии), общая – 51,2 м. кв.м.
- 2 большие, светлые комнаты: 13,2 м. кв. и 16,3 м. кв. легко позволяю организовать зоны отдыха и работы;
- просторная кухня: 8,8 м. кв.м., квадратной формы, позволяет удобно расставить мебель и создаёт комфорт для приготовления пищи и семейных ужинов;
- удобный 1этаж из 9 (высокий!)
- в коридоре и в комнате, установлены вместительные шкафы-купе;
- окна – стеклопакеты ПВХ, лоджия так же застеклена;
- на полуво всей квартире ламинат, линолеум лишь в 1 комнате;
- санузел раздельный, облицован современной плиткой.
- высокие потолки: 2,61м.;
- дверь металлическая;
- счётчики воды;
Квартира в отличном состоянии, что позволяет сразу заехать и жить! Отличный вариант как для жизни, так и для сдачи в аренду.
Дом 1978 года. Капремонт дома 2025года. Произведена замена инженерных коммуникаций, трубы водоснабжения и водоотведения. Окрашенный фасад, придаёт эстетический вид дому.
Общая площадь указана по СНБ.
Лицензия: №02240/362 МЮ РБ, 31.07.2018
- Регион: Минск и район
- Населенный пункт: г. Минск
- Микрорайон: Народная
- Адрес: Плеханова ул. д. 32 к. 2
- Метро: Партизанская
- Район: Ленинский
- Контактное лицо: Фаттория Плюс
- Телефон: +375 29 245-74-39
- Телефон: +375 29 245-74-39
- Продажа квартиры


в избранное









































