Продается квартира по адресу Семеняко ул. д. 27, г. Минск
- Количество комнат: двухкомнатная
- Этаж: 4 этаж из 16
- Санузел: раздельный
- Планировка: новостройка
- Год постройки: 2022
Просторная 2-комнатная квартира в доме 2022 года постройки в новом микрорайоне Минска.
Квартира уютная и полностью готова к проживанию.
В оконных проёмах установлены стеклопакеты с профилем ПВХ, в том числе остекление лоджии. Подключены приборы учёта воды и тепла. Домофон, телефонизация, оптоволоконная связь. Две стоянки прямо под домом.
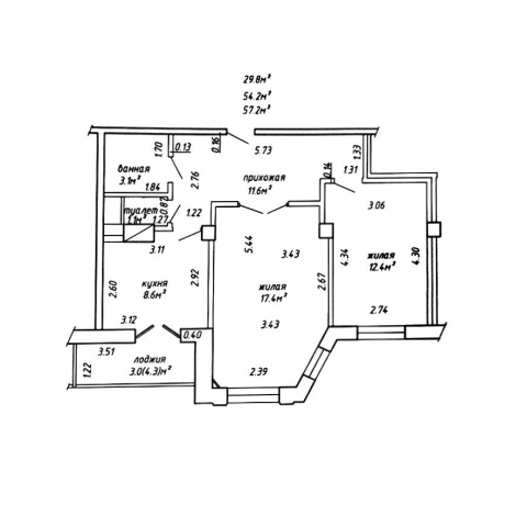
Общая площадь указана по СНБ (с учётом лоджии) - 57.2м2
Ухоженный подъезд и места общего пользования. Подключена система видеонаблюдения за придомовой территорией и в подъезде.
Дом расположен в одном из самых быстроразвивающихся и востребованных микрорайонов столицы. Развитая инфраструктура: в нескольких метрах магазины, остановки общественного транспорта, объекты сервисного обслуживания. В шаговой доступности детский сад, общеобразовательная школа со спортивным уклоном, торговый центр.
Хорошее транспортное сообщение, квартира находится между двумя ветками метро: московской и автозаводской. Удобный выезд на МКАД. У дома два парка и водоём, места для прогулок и активного отдыха.
Звоните, организуем показ в удобное для вас время!
Общая площадь указана по СНБ.
Лицензия: 02240/446 МЮ РБ, 11.07.2022
- Регион: Минск и район
- Населенный пункт: г. Минск
- Жилой комплекс: Времена года
- Микрорайон: Семашко
- Адрес: Семеняко ул. д. 27
- Метро: Петровщина
- Район: Фрунзенский
- Контактное лицо: Фаттория
- Телефон: +375 29 111-90-90
- Телефон: +375 29 111-90-90
- Продажа квартиры


в избранное






































