Продается квартира по адресу Шаранговича ул. д. 78, г. Минск
- Количество комнат: двухкомнатная
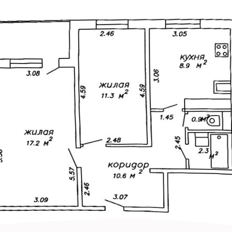
- Этаж: 5 этаж из 9
- Санузел: раздельный
- Год постройки: 2001
Уютная квартира на 5 этаже 9ти этажного дома в Сухарево
Квартира в отличном состоянии, светлая, в доме 2001 года постройки, идеально подойдёт для тех, кто ценит комфорт и индивидуальность своего жилища.
Вместительная кухня 8.9 кв м с бытовой техникой.
На полу долговечный линолеум. В гостиной и детской ламинат. Гостиная украшена стильной гипсовой лепниной (колонны, портал под камин, потолок). Стены отделаны обоями под покраску с возможностью выбора цвета краски.В коридоре оригинальные виниловые обои под венецианскую штукатурку.
Все межкомнатные двери новые. С/у раздельный, плитка.
Окна - деревянные стеклопакеты. Кондиционер
Балкон застеклен и отделан.
Входная дверь металлическая, домофон.
Во дворе всегда есть место, где парковать машину, а также детская площадка и уютные места для посиделок. Тишина, зелень, чистый подъезд, хорошие соседи.
Площадь указана по СНБ.
Быстрый выезд на МКАД
- Регион: Минск и район
- Населенный пункт: г. Минск
- Микрорайон: Сухарево
- Адрес: Шаранговича ул. д. 78
- Район: Фрунзенский
- Контактное лицо: Елена
- Телефон: +375 29 628-41-14
- Телефон: +375 29 628-41-14
- Продажа квартиры


в избранное























































