Продается квартира по адресу Ташкентская ул. д. 18 к. 2, г. Минск
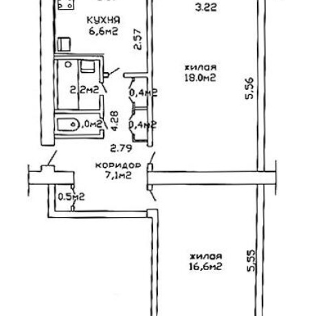
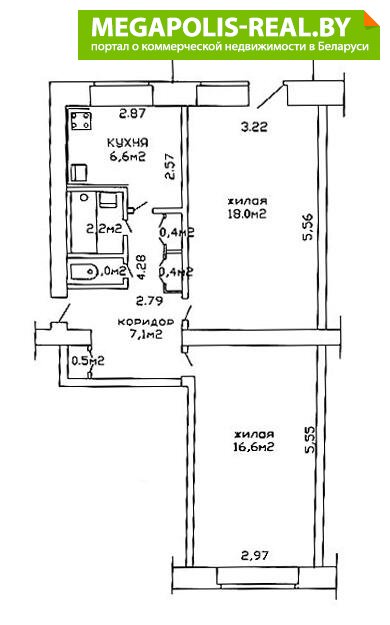
- Количество комнат: двухкомнатная
- Этаж: 5 этаж из 5
- Санузел: раздельный
- Год постройки: 1968
Продается 2-х комнатная квартира в живописном районе города.
Отдельные комнаты 18 м2 и 16.6 м2. Кухня 6.6 м2. В коридоре расположена вместительная гардеробная. Раздельный санузел. В квартире сделан новый евроремонт. На полу плитка и ламинат, на стенах штукатурка. Квартира полностью готова к проживанию. Продается с мебелью и техникой. Развитая инфраструктура. Сады, школы, магазины в шаговой доступности. Удобный выезд на МКАД.
Общая площадь указана по СНБ.
Лицензия: №02240/362 МЮ РБ, 31.07.2018
- Контактное лицо: Фаттория Плюс
- Телефон: +375 29 122-00-88
- Телефон: +375 29 122-00-88
- Продажа квартиры


в избранное














































