Продается квартира по адресу Уборевича ул. д. 136, г. Минск
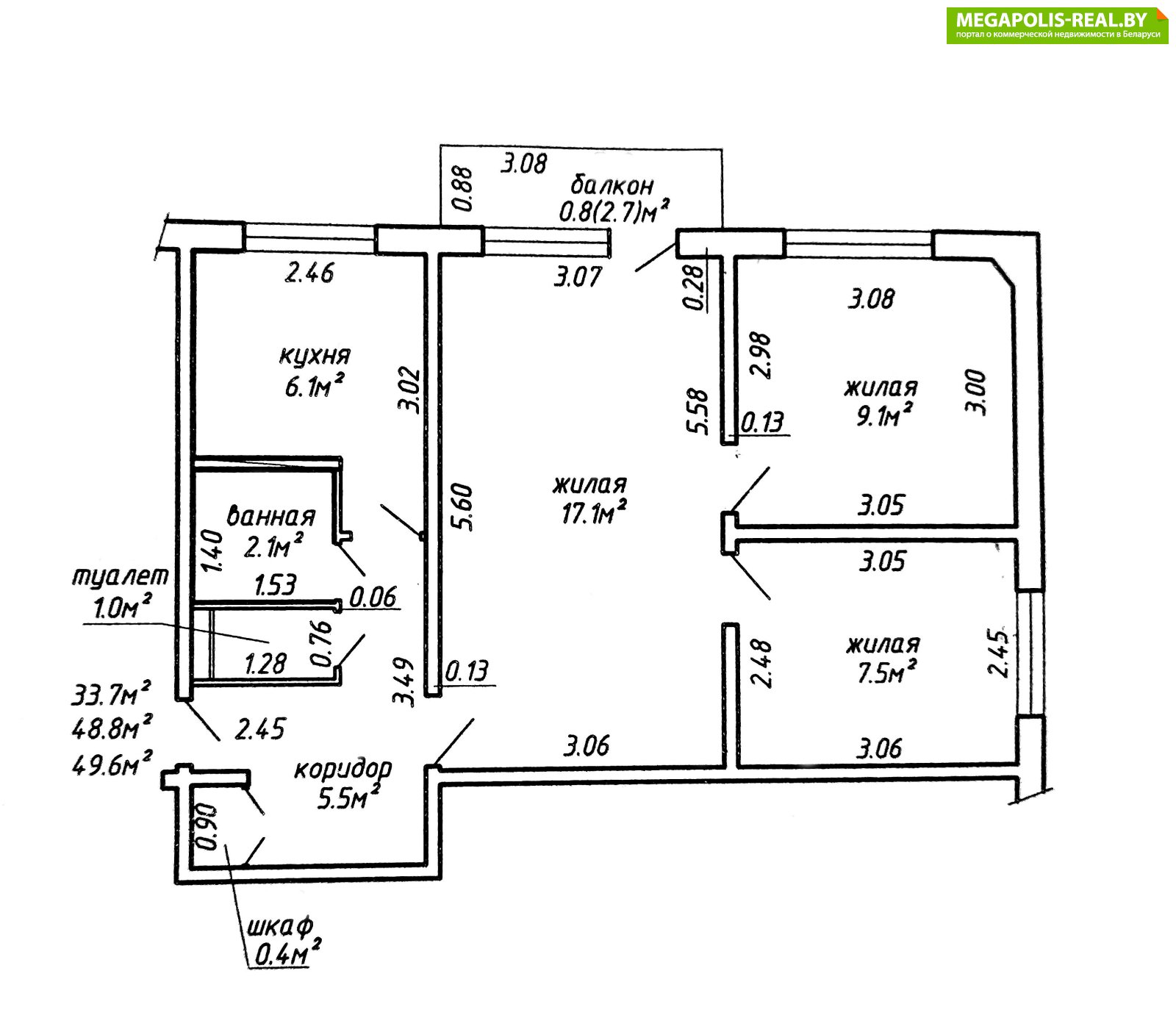
- Количество комнат: трехкомнатная
- Этаж: 3 этаж из 5
- Санузел: раздельный
- Год постройки: 1967
Уютная, тихая, светлая 3-комнатная квартира на улице Уборевича, 136.
Расположение: 3-й этаж из 5. Соседи дружелюбные, всего 3 квартиры на этаже.
Планировка: две изолированные спальни, просторная проходная гостиная и отдельная кухня. Санузел совмещённый, в коридоре — удобный шкаф-купе. Большой подвал для хранения - примерно 6 м2. Застеклённый балкон.
Ремонт: качественная отделка — ламинат в комнатах, стеклопакеты ПВХ, кондиционер, встроенная техника Bosch. Заменена электрика и вся сантехника.
Локация: всё необходимое в шаговой доступности - магазины, рынок, ледовый дворец, детские сады, школы, парк с водоёмом, остановки общественного транспорта, ухоженные зелёные зоны для прогулок.
Удобный выезд на МКАД.
Быстрый выход на сделку. Гарантия юридической «чистоты».
Приглашаем на просмотр — приходите, чтобы лично оценить комфорт этой квартиры!
!!!Бонус – машиноместо – 300м. от подьезда.
Площадь указана по СНБ.
Лицензия: №02240/362 от 31.07.2018, Министерство юстиции РБ
- Контактное лицо: Александр
- Телефон: +375 29 685-25-91
- Телефон: +375 29 685-25-91
- Продажа квартиры


в избранное



























