Продается квартира по адресу Горецкого ул. д. 27, г. Минск
- Количество комнат: однокомнатная
- Этаж: 5 этаж из 14
- Санузел: раздельный
- Год постройки: 1995
1-комнатная квартира в кирпичном доме возле лесопарка Медвежино, полностью готовая для проживания!
Кирпичный дом, отличная тепло и шумоизоляция. Современная планировка востребованного формата.
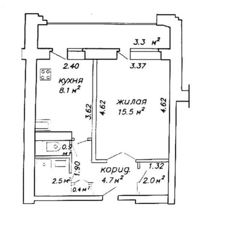
Функциональная планировка прочувствовать это можно лишь вступив на порог квартиры!
Преимущества нашей квартиры:
- Квартира находится на 5-ом этаже, что позволит Вам любоваться приятным видом изо окна, а посторонний шум и лишние глаза с улиц не будут Вас беспокоить.
- Есть застеклённая, утепленная, просторная лоджия.
- Гардеробная в которой Вы сможете разместить свои любимые вещи.
- Просторная кухня площадью 8.1 м2 добавит Вам удобство, комфорт и функционал, а также станет неизменным местом уютных дружеских и семейных вечеров.
- Раздельный санузел удобен при утренних сборах.
- Установлены стеклопакеты.
- Квартира с отличным ремонтом, в кирпичном доме, поэтому можете сразу заезжать и жить.
- Приятным бонусом станет бытовая техника и встроенная мебель, которая останется с Вами при покупке квартиры.
Близость автостоянки (через дорогу) и возможность переоформления машиноместа.
Микрорайон Сухарево с развитой инфраструктурой. В шаговой доступности учреждения здравоохранения, образования, кафе, магазины. Рядом лесопарк Медвежино и парк Дививелка, что позволяет активно и с удовольствием проводить свободное время.
Отличная сформированная инфраструктура и транспортное сообщение. Две линии метро: К. Горка, Петровщина, Михалово -10-15 минут. Авт.№ 11,121, 138,140,163, 30с,50с, 116, 122э, Евроопт/К. Горка. Тр.№7,8,38,45,77,25,52. Маршрутки №1191,1212,1026,1130,1230. Детские учреждения: Гиназия№33, СШ№6, Д/С №559,565,200,76. Поликлиника, Сетевые магазины, ТЦ Магнит, Гудвин, Mak.dy
Хорошее транспортное сообщение. До станции метро Каменная горка всего 10 минут наземным транспортом. Удобный выезд на кольцевую дорогу.
Эта чудесная и уютная квартира совершенно не требует дополнительных затрат и полностью готова к вашему переезду.
Добро пожаловать домой!
Общая площадь указана по СНБ.
Лицензия: №02240/362 от 31.07.2018, Министерство юстиции РБ
- Регион: Минск и район
- Населенный пункт: г. Минск
- Микрорайон: Сухарево
- Адрес: Горецкого ул. д. 27
- Район: Фрунзенский
- Контактное лицо: Александра
- Телефон: +375 29 680-30-89
- Телефон: +375 29 680-30-89
- Продажа квартиры


в избранное




































