Продается квартира по адресу Якубова ул. д. 32, г. Минск
- Количество комнат: двухкомнатная
- Этаж: 6 этаж из 12
- Санузел: раздельный
- Год постройки: 1978
Двухкомнатная квартира с ремонтом в Серебрянке!
Квартира светлая, уютная, в отличном состоянии и полностью готова к заселению. Не требует дополнительных вложений, так как выполнен хороший современный ремонт.
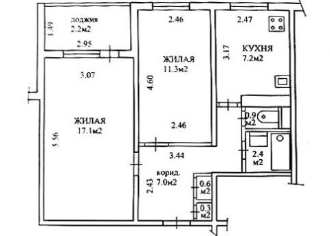
Удобная планировка: общая площадь 52,4 м.кв. (по СНБ), просторные комнаты:16,3м.кв. и 13,2м.кв., кухня -8,8 м.кв. с электроплитой.
· проведена новая электрика - можно включать мощные приборы,
· полностью заменены сантехника и трубы;
· радиаторы - будет тепло и сухо даже зимой;
· залита новая стяжка, ламинат качественный, уложен ровно, без скрипов;
· установлены стеклопакеты ПВХ— шумоизоляция отличная, сквозняков нет;
· санузел раздельный, современная плитка;
дверь входная металлическая, с хорошей шумоизоляцией.
· аккуратно в тамбуре и подъезде.
· хорошие соседи.
· Мебель остаётся по договорённости.
Дом 1979 года постройки. Капитальный ремонт 2024г. Кровля, фасад, подъезд — всё приведено в порядок.Вам не придется ждать очереди на капремонт ещё 20 лет.
Для тех, кто ценит комфорт: район обжитой, всё в шаговой доступности.
Инфраструктура:
· детские сады и школы, гимназии рядом;
· поликлиники, аптеки, банки;
· магазины: «Евроопт», «Санта» «Гиппо», и другие;
· рынок «Серебрянка» (рядом, очень удобно)
· кинотеатр «Салют»
Серебрянка – экологически чистый район. Отличное качество воды и обилие зелёных зон: парк им. Грековой, Чижовское водохранилище, Лошица, Слепянская водная система, река Свислочь, велодорожка. Всё позволяет заботиться о здоровье в полной мере.
Превосходное транспортное сообщение, а также быстрый выезд на МКАД. До центра Минска 15–20 минут. До ст.м. Партизанская 10 минут. Тролейбусы, автобусы, трамвай, остановка рядом.
Кому подойдёт:Тем, кто не хочет стройку, кто понимает разницу между «купил и строй» и «купил и живи».
Это отличный вариант как для проживания, так и для сдачи в аренду.
Если для покупки этой квартиры необходимо продать свою недвижимость, поможем продать выгодно.
Звоните, согласуем просмотр!
Общая площадь указана по СНБ.
Лицензия: №02240/362 МЮ РБ, 31.07.2018
- Регион: Минск и район
- Населенный пункт: г. Минск
- Микрорайон: Серебрянка
- Адрес: Якубова ул. д. 32
- Метро: Партизанская
- Район: Ленинский
- Контактное лицо: Ольга
- Телефон: +375 29 245-74-39
- Телефон: +375 29 245-74-39
- Продажа квартиры


в избранное



































