Продается квартира по адресу БЕДЫ ЛЕОНИДА 36, Минск
- Количество комнат: трехкомнатная
- Этаж: 6 этаж из 19
- Тип жилья: вторичное
- Ремонт: отличный ремонт
- Санузел: 2 сан.узла
- Планировка: свободная
- Балкон: 2 балкона
- Год постройки: 2016
Продается прекрасная 3-х комнатная квартира г.Минск, ул.Беды д.36.
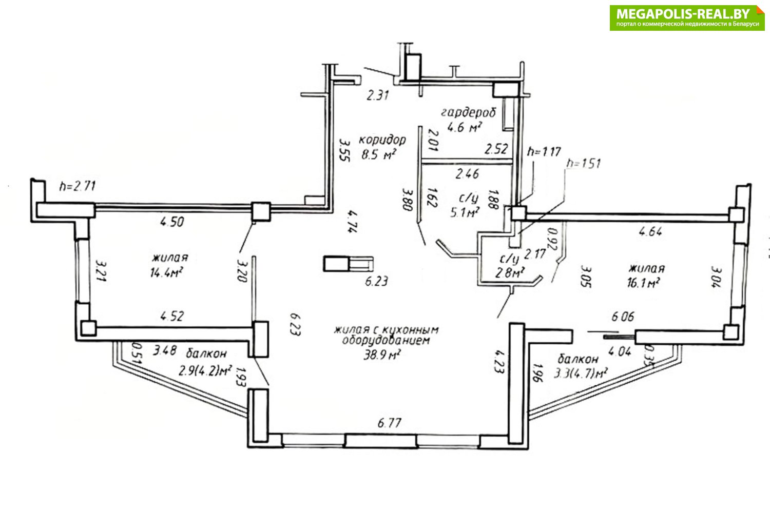
Жилое помещение расположено на 6 этаже 19 этажного каркасно-блочного дома 2016 года постройки. Общая площадь 90,4м2 (по СНБ 96.6м2). Жилая 69.4м2 состоит просторной гостиной 38.9м2 с кухонным оборудованием, большой спальни 16.1м2 и уютной детской 14.4м2. В квартире есть два санузла, две застекленных балкона и просторная гардеробная. Высота потолков 2.71м.
Современный ремонт, выполненный по дизайн-проекту с использованием качественных строительных материалов и оборудования. Все элементы изготовлены по индивидуальному заказу.
На стенах венецианская штукатурка «мокрый шелк», фурнитура с магнитными замками в межкомнатных дверях. На всех полках в мебели установлена подсветка.
По всей квартире потолок из гипсокартона со встроенными светильниками, в ванных комнатах натяжные потолки.
Полы в гостиной, спальне, детской и частично в прихожей паркетная доска из дуба. В санузлах, кухонной зоне и частично в прихожей уложена итальянская плитка с подогревом и энергоэффективными регуляторами.
Межкомнатные двери изготовлены из массива ольхи со стеклом. Стекло сатин, триплекс (два стекла переклеенные между собой). Стекла не пропускают свет!! Гарнитура Tupai.
Установлены двухкамерные стеклопакеты с отличной шумоизоляцией.
Металлическая входная дверь (Стальная линия) с установленным замком, который открывается от отпечатка пальца и не используется ключи.Встроенная кухня из шпона, вся гарнитура Blum. Бытовая техника премиум класса. Индукционная варочная панель Bosh (6 конфорок), духовой шкаф Bosh c функцией СВЧ, посудомоечная машина Mile, встроенная кофемашина Бренда Mile, встроенный холодильник из акрила side by side "Liebherr", стиральная машина Mile. Столешница из кварцевого камня (производитель Belenco spa Black). Мойка бренда BLANCO. Телевизор Samsung .В санузлах вся сантехника Grohe. Угловая ванна Kolpasan, раковина из искусственного камня.
Мебель в спальне из массива с зеркалами. В детской шкаф из акрила, кровать и встроенные боковины мебели из массива ольхи.В квартире установлена приточно-вентиляционная установка с кондиционированием фирмы Turkov, что позволяет не открывать окна и дышать всегда чистым воздухом, без аллергенов и пыли.
Есть возможность приобрести парковочное место 12.8м2 (4.66м х 2.77м), удобно расположенное в подземном паркинге сразу возле лифтов, которых в доме два: пассажирский и грузопассажирский. Подключена система видеонаблюдения в подъезде и на придомовой территории.
Рядом расположено множество магазинов, детские сады, школы и гимназия, медицинские, спортивные и учебные учреждения, объекты сервисного обслуживания и досуга.
Жилой комплекс находится в окружении зелёной зоны. Рядом Севастопольский парк и парк Дружбы народов. У дома обустроенный сквер, с местами для отдыха и занятий спортом. Идеальное место для пеших и велопрогулок.
Сделайте шаг навстречу своей мечте! Звоните, согласуем удобное время осмотра. Поможем выгодно продать вашу недвижимость для покупки данного объекта. Бесплатно проконсультируем, окажем профессиональную помощь в сложных вопросах с недвижимостью, обеспечим юридическое сопровождение сделки и безопасность взаиморасчетов. Квалифицированные специалисты с большим опытом работы.ОДО "Риэлтерский Дом", г.Минск, ул.Берестянская д.12 оф.110, 111. УНП 190113134, лицензия на право осуществления деятельности по оказанию юридических услуг (риэлтерские услуги) №02240/55 выдана 06.06.2005 Министерством юстиции Республики Беларусь, договор №61/1 от 29.08.2024 г.
- Регион: Минск и район
- Населенный пункт: Минск
- Микрорайон: Леонида Беды
- Адрес: БЕДЫ ЛЕОНИДА 36
- Метро: Академия наук
- Район: Советский
- Контактное лицо: ОДО ''Риэлтерский Дом''
- Телефон: +375 44 552-50-70
- E-mail: rd-odo@mail.ru
- Телефон: +375 44 552-50-70
- Продажа квартиры
- Условия продажи: чистая продажа
- Собственность: частная


в избранное


















































