Продается квартира по адресу Кунцевщина ул. д. 36, г. Минск
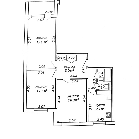
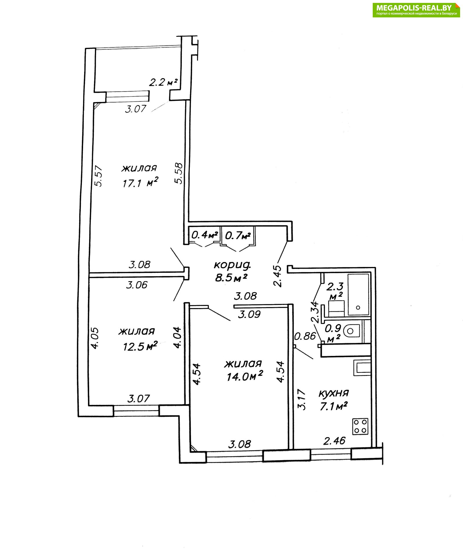
- Количество комнат: трехкомнатная
- Этаж: 1 этаж из 10
- Санузел: раздельный
- Год постройки: 1990
Продается уютная 3-х комнатная квартира рядом с метро Каменная горка.
Квартира расположена в одном из самых востребованных районов Минска и предоставляет все условия для комфортной жизни большой семьи. Имеется подвальное (погреб) помещение.
Удобная планировка: три отдельные комнаты, раздельный санузел, большая лоджия.
Общая площадь по СНБ: 65,7 м2
Высота потолков: 2,54 м
Квартира полностью готова к проживанию.
Все, что необходимо для жизни – на расстоянии короткой пешей прогулки:
-Восемь детских садов, а для детей постарше - школа 201 с бассейном и три гимназии (номер 4, 39 и 43), музыкальная школа.
-Взрослая и детская поликлиники, медицинский центр «ЛОДЭ», стоматологии и салоны красоты, фитнес-центры.ТРЦ Green City, гипермаркеты Материк, Алми, магазины -Евроопт, Соседи и др.
-аптеки, банки и почтовое отделение – все рядом.
Тихий зеленый двор с детской площадкой. Через дорогу расположен парк имени Уго Чавеса - прекрасное место для пеших прогулок и занятий спортом.
Исключительная транспортная доступность!
Станция метро «Каменная Горка» всего в 10 минутах ходьбыОстановки городского транспорта и маршрутных такси в непосредственной близостиУдобный выезд на МКАД и в центр города.
Разумный торг. Покажем в удобное для вас время. Поможем продать вашу квартиру, для покупки этой.
Лицензия: 02240/446 от 11.07.2022, Министерство юстиции РБ
- Регион: Минск и район
- Населенный пункт: г. Минск
- Микрорайон: Каменная горка
- Адрес: Кунцевщина ул. д. 36
- Район: Фрунзенский
- Контактное лицо: Светлана
- Телефон: +375 29 111-90-90
- Телефон: +375 29 111-90-90
- Продажа квартиры


в избранное
























