Продается квартира по адресу Кунцевщина ул. д. 6, г. Минск
- Количество комнат: трехкомнатная
- Этаж: 9 этаж из 9
- Санузел: раздельный
- Год постройки: 1989
Приглашаем посмотреть теплую 3х комнатную квартиру, закрытую от шума города и расположенную у метро с хорошими соседями.
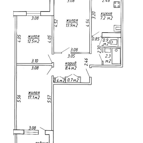
Отличная планировка в которой можно реализовать разные сценарии для вашей комфортной жизни. Тамбур на две квартиры. Три отдельных комнаты на разные стороны формируют отличный микроклимат в квартире.
Данная планировка при желании позволяет законно объединить кухню и комнату в помещение более 21м2.
Прекрасная энергетика. Отсутствие соседей сверху при наличии технического этажа делают Вашу жизнь заметно комфортней.
Отличное транспортное сообщение и развитая инфраструктура делают данную квартиру одним из лучших предложений.
В квартире обновлены стены и потолки, Вам осталось подобрать пол и двери на ваш вкус для создания уютной атмосферы.
Встречайте новый год в новой квартире!
Поможем продать Вашу квартиру при необходимости, проконсультируем по вопросам с недвижимостью.
Общая площадь указана по СНБ.
Лицензия: №02240/362 МЮ РБ, 31.07.2018
- Регион: Минск и район
- Населенный пункт: г. Минск
- Микрорайон: Каменная горка
- Адрес: Кунцевщина ул. д. 6
- Метро: Каменная горка
- Район: Фрунзенский
- Контактное лицо: Фаттория Плюс
- Телефон: +375 44 753-61-88
- Телефон: +375 44 753-61-88
- Продажа квартиры


в избранное








































