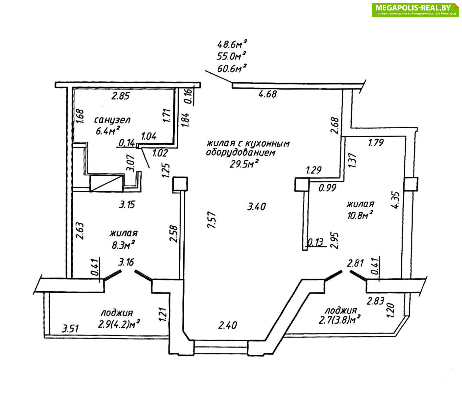
Продается квартира по адресу Рыбалко ул. д. 7, г. Минск
- Количество комнат: трехкомнатная
- Этаж: 4 этаж из 16
- Санузел: раздельный
- Планировка: новостройка
- Год постройки: 2021
Продаётся евротрешка хорошей планировки в тихом и уютном месте, в лучшей для жизни локации Минска в жилом комплексе «Антоновский квартал».
Метро Пролетарская в шаговой доступности.
Квартира очень уютная и продуманная, с качественным дорогостоящим ремонтом.
Развитая инфраструктура, остановка наземного транспорта рядом ,вблизи дома нет сложностей с парковкой авто. Закрытая дворовая территория, спортивная и детская площадки, велобоксы, видеонаблюдение на всей территории.
Прекрасная инфраструктура, Антоновский парк для прогулок, близость ко всем значимым объектам: детский сад Nº47, школа Nº40, пункт выдачи OZON, поликлиники, магазины,
Приглашаем на просмотр! Продадим Вашу квартиру для покупки этой!
Помощь в получении кредита при покупке этой квартиры.
Общая площадь указана по СНБ.
Лицензия: 02240/446 МЮ РБ, 11.07.2022
- Регион: Минск и район
- Населенный пункт: г. Минск
- Жилой комплекс: Антоновский квартал
- Микрорайон: Судмалиса
- Адрес: Рыбалко ул. д. 7
- Метро: Пролетарская
- Район: Ленинский
- Контактное лицо: Фаттория
- Телефон: +375 29 657-62-83
- Телефон: +375 29 657-62-83
- Продажа квартиры


в избранное

















































































































