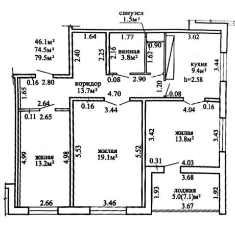
Продается квартира по адресу Спортивная ул. д. 4, д. Боровая
- Количество комнат: трехкомнатная
- Этаж: 13 этаж из 16
- Санузел: раздельный
- Планировка: новостройка
- Год постройки: 2025
Предлагаем вашему вниманию светлую квартиру в окружении соснового леса, с захватывающими закатами и рассветами.
В тоже время в шаговой доступности от инфраструктуры Новой боровой (современных школ с бассейнами, детских садов, новых поликлиник, магазинов, кафе, банков.
В квартире заменена входная дверь, стеклопакеты на балконе на тёплые, выполнен тёплый пол, а также заказана кухня со всей техникой. Приглашаем на просмотр.
Поможем продать вашу квартиру для приобретения этой и проконсультируем по выгодным кредитам.
Общая площадь указана по СНБ.
Лицензия: 02240/446 МЮ РБ, 11.07.2022
- Регион: Минск и район
- Населенный пункт: д. Боровая
- Микрорайон: Копище
- Адрес: Спортивная ул. д. 4
- Метро: Уручье
- Район: Первомайский
- Контактное лицо: Фаттория
- Телефон: +375 29 190-00-88
- Телефон: +375 29 190-00-88
- Продажа квартиры


в избранное



































