Продается квартира по адресу Троицкая ул. д. 29 к. А, аг. Лесной
- Количество комнат: трехкомнатная
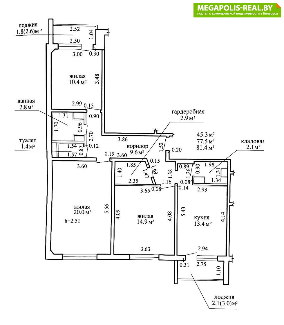
- Этаж: 7 этаж из 9
- Санузел: раздельный
- Год постройки: 2012
Продается просторная 3-комнатная квартира в а.г. Лесной по адресу ул.Троицкая д.29А/1.
Расположена квартира на 7-м этаже.
Кухня очень просторная 13,4 м кв.
Ремонт выполнен качественно с использованием очень хороших материалов.
В квартире все продумано для комфортной жизни.
На кухне пол с подогревом (терморегулятор) - итальянская плитка. Кухонный гарнитур итальянского производителя с импортной встроенной техникой:
-духовой шкаф
- посудомоечная машина
- микроволновая печь
- холодильник
Установлен проточный многоступенчатый фильтр для очистки воды.
В комнатах уложена усиленная паркетная доска (дуб) с верхним слоем 4+мм. Пробковая подложка, что обеспечивает высокий уровень тепло- и шумоизоляции.
Установлены окна ПВХ Salamander Германия - надежные, благодаря внутреннему стальному армированию и ширине основного профиля.
Утеплены стены на 2-ух лоджиях (установлены окна ПВХ) и дополнительно утеплен пол и потолок на балконе в детской комнате.
Имеется оборудованная кладовая со стиральной и сушильной машиной.
Спроектирована отдельная гардеробная комната (техпаспорт соответствует).
В гостиной установлен кондиционер (согласовано).
В ванной комнате и с/у плитка высокого качества (итальянская). Под ванной оборудовано пространство для хранения необходимых вещей.
Установлен бойлер - скрытый монтаж с доступом для обслуживания.
Для удобства, в коридоре смонтированы проходные выключатели.
Вход в квартиру через тамбур, который на 2 квартиры, где есть ящик для обуви и вешалки для верхней одежды.
Квартира очень теплая, т.к. дом был дополнительно утеплен снаружи.
Выгодное расположение дома - все необходимое находится в шаговой доступности.
!Это отличный вариант для семьи и тех, кто ценит качество и комфорт!
!Квартира полностью готова к проживанию!
Лицензия: №02240/362 МЮ РБ, 31.07.2018
- Регион: Минск и район
- Населенный пункт: аг. Лесной
- Адрес: Троицкая ул. д. 29 к. А
- Контактное лицо: Фаттория Плюс
- Телефон: +375 44 796-19-64
- Телефон: +375 44 796-19-64
- Продажа квартиры


в избранное














































