Продается квартира по адресу Виталия Цвирко ул. д. 73, г. Минск
- Количество комнат: трехкомнатная
- Этаж: 4 этаж из 10
- Санузел: раздельный
- Планировка: новостройка
- Год постройки: 2025
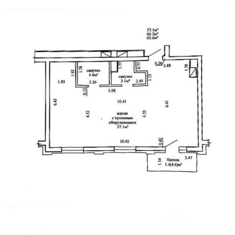
Продается евротрешка общей площадью по СНБ 65.6м2 в доме "Lara" ЖК «Северный берег» Дом находится в 5 минутах ходьбы от набережной и Lakeside-парка. -Распашные энергосберегающие стеклопакеты в алюминиевом профиле-Лифты, спускающиеся на -1 этаж с кладовыми помещениями (3.9м2)-Сквозные подъезды с выходом во двор и на улицу. -Закрытый двор без машин. -Двор с ландшафтным дизайном. -Развивающая детская игровая зона. -Элегантно оформленные и меблированные лобби и этажные холлы. -Помещение для колясок. -Лапомойки.-Подземная система сбора мусора.-Закрытая просторная велопарковка.-Парковка рядом с домом.
Преимущество комплекса - первый в Беларуси Клуб жильцов "Residential Club" с доступом только по предварительной онлайн-брони. -Это более 800 м2 приватного пространства: -тренажёрный зал -кинотеатр на 18 мест-две финские сауны-переговорная и коворкинг-зона -бильярдная-лаунж-холл-зал для мероприятий с кухонной зоной, посудой, техникой и возможностью организовать кейтеринг.
-Инфраструктура стремительно развивается. -Удобный выезд на МКАД и в центр города. Работает маршрут общественного транспорта.
Лицензия: 02240/446 от 11.07.2022, Министерство юстиции РБ
- Регион: Минск и район
- Населенный пункт: г. Минск
- Жилой комплекс: Северный Берег
- Микрорайон: Цна
- Адрес: Виталия Цвирко ул. д. 73
- Район: Советский
- Контактное лицо: Денис
- Телефон: +375 44 588-05-05
- Телефон: +375 44 588-05-05
- Продажа квартиры


в избранное




























































