Продается квартира по адресу Якубова 56к 1, Минск
- Количество комнат: трехкомнатная
- Этаж: 3 этаж из 9
- Санузел: раздельный
- Год постройки: 1981
Продается 3-к. квартира с раздельными комнатами и с отличным месторасположением и прекрасным видом из окон.
Адрес - г. Минск, ул. Якубова, 56/1 (Ленинский район: Серебрянка)
Светлая квартира, в которой окна выходят на обе стороны дома.
Характеристики квартиры:
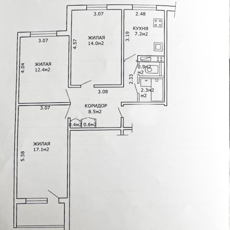
Общая S по СНБ - 65,6 кв.м.;
Общая S - 63,4 кв.м. (без учета лоджии);
Жилая S - 43.5 кв.м.
В квартире просторная прихожая, в которой расположена зона хранения обуви и других принадлежностей. 3 полноценные раздельные комнаты площадью (12,4; 14; 17,1 кв.м.). Раздельный санузел. Входная металлическая дверь. Квартира пригодна для жизни.
Чистый аккуратный подъезд, новый лифт, приветливые соседи.
Зелёный и тихий двор, достаточное количество парковочных мест для автомобилей.
Локация с развитой инфраструктурой - как социальной, так и транспортной + зеленая зона через дорогу.
В шаговой доступности от дома есть всё необходимое: магазины, детские дошкольные учреждения, школы, поликлиники, а также иные организации и учреждения, обеспечивающие комфорт и удобство проживания в данном районе. Остановочный пункт 5 минут ходьбы. В 15 минутах езды на общественном транспорте от дома ст. метро «Партизанская».
Рядом с домом большое количество зеленых зон: Лошицкий парк, парк Серебряный Лог, река Свислочь, Минская велодорожка и иные места для прогулок и отдыха.
Возможна покупка с привлечением кредитных средств от банков-партнёров. Окажем помощь в продаже вашей недвижимости для покупки данного объекта. За подробной информацией обращайтесь к нашим специалистам по единому номеру, указанному в контактной информации.
- Регион: Минск и район
- Населенный пункт: Минск
- Микрорайон: Серебрянка
- Адрес: Якубова 56к 1
- Район: Ленинский
- Контактное лицо: АЛИВЕРА
- Телефон: +375 44 541-50-50
- Телефон: +375 44 541-50-50
- Продажа квартиры


в избранное




































