Аренда: Аренда офиса 984,4 м2 Купревича 14, Минск,
Предлагаем аренду офисов в здании на Купревича 14!
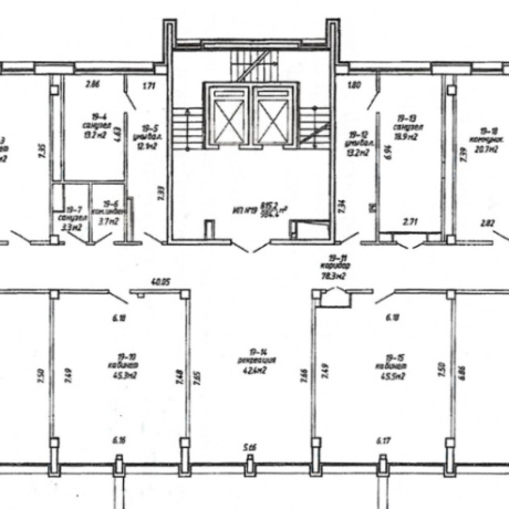
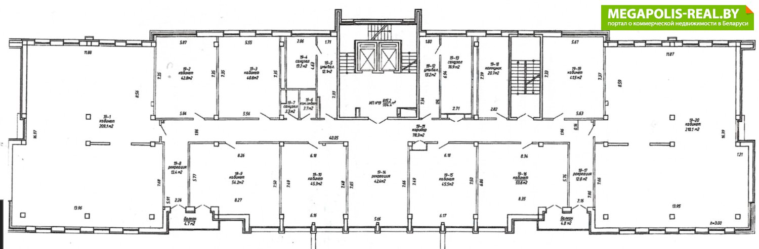
Офис кабинетного формата 2-м этаже Бизнес-центра, общая площадь - 984,4 м2.
Локация с хорошим транспортным сообщением, удобные подъездные пути и большая парковка возле здания. Возле здания находятся остановки общественного транспорта, ближайшие станции метро «Уручье» и «Борисовский Тракт».
• Эксклюзивный ремонт;
• Кабинетная система;
• Помещение под кухню;
• Система вентиляции;
• Система кондиционирования;
• Доступ в здание 24/7;
• Подъездные пути/парковка.
Коммуникации: Круглосуточная охрана в здании; Вентиляционная система; Система кондиционирования; Оптоволокно от нескольких интернет-провайдеров, локальная сеть.
Арендатор не платит комиссию агентству!
Готовы рассмотреть Ваши предложения.
Звоните!
- Площадь: 984 м2
- Этаж: 10
- Ремонт: Отличный ремонт
- Интернет: скоростной интернет
- Парковка: да
- Близость к метро: Уручье
- Бизнес-центр: Академика Купревича 14
- Класс бизнес-центра: B+
- Регион: Минск и район
- Населенный пункт: Минск
- Район: Первомайский
- Микрорайон: Академгородок
- Адрес: КУПРЕВИЧА В. 14
- Контактное лицо: Иван
- Телефон: +375 29 380-85-85
- E-mail: marielt.komm@mail.ru
- Телефон: +375 29 380-85-85
- Вид сделки: Предложение
- Цена: с НДС
- Форма собственности: Частная
- Стоимость коммунальных услуг
(за все помещение):В отопительный сезон: - руб.В неотопительный сезон: - руб.


в избранное





































