Аренда: Аренда офисного блока в БЦ "Виктория Плаза", Минск,
Сдается в аренду офисный блок площадью 79,6 м2 в БЦ "Виктория Плаза"
Бизнес-центр расположен в центре города недалеко от станции метро "Площадь Победы". В шаговой доступности имеются остановки наземного общественного транспорта.
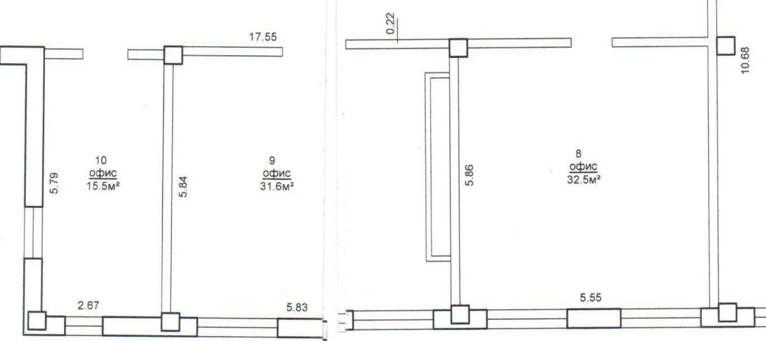
Помещение находится на 4-м этаже. Блок состоит из трех кабинетов, связанных между собой коридором, имеется несколько санузлов. Установлена система кондиционирования, имеются все коммуникации.
Коммунальные и эксплуатационные платежи включены в аренду.
Арендатор услуги агентства не оплачивает
Звоните, ответим на Все вопросы.
- Год постройки: 2007
- Площадь: 79 м2
- Этаж: 4
- Ремонт: Хороший
- Интернет: Есть
- Охрана: да
- Парковка: да
- Количество телефонов: Больше 5
- Режим работы здания: 24/7
- Близость к метро: Площадь Якуба Коласа
- Питание: кафе
- Бизнес-центр: Виктория Плаза
- Класс бизнес-центра: B
- Регион: Минск и район
- Населенный пункт: Минск
- Район: Партизанский
- Микрорайон: Козлова, Захарова
- Адрес: ПЛАТОНОВА 1Б
- Контактное лицо: Валерия
- Вид сделки: Предложение
- Цена: с НДС
- Форма собственности: Частная
- Тип договора: прямая аренда


в избранное















