Аренда: Аренда офисов 624,4 кв.м, в БЦ «Порт», изолированный этаж, метро, Минск,
Аренда офисов 624,4 кв.м в современном бизнес-центре «Порт»
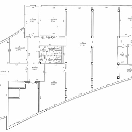
Этаж с продуманной планировкой
Качественный ремонт, готовые к въезду офисы
Установлены системы кондиционирования и вентиляции
Санузлы на этаже
Кухня с мебелью
Удобная нарезка помещений — открытые пространства, кабинеты, переговорные
Собственная парковка для арендаторов и гостей
Метро — в шаговой доступности, отличная транспортная развязка
- Площадь: 624 м2
- Ремонт: да
- Интернет: да
- Охрана: да
- Парковка: да
- Режим работы здания: 24/7
- Близость к метро: Уручье
- Питание: магазин
- Бизнес-центр: Порт на пр. Независимости
- Регион: Минск и район
- Населенный пункт: Минск
- Район: Первомайский
- Микрорайон: Уручье
- Адрес: НЕЗАВИСИМОСТИ ПР. 177
- Контактное лицо: Ирина
- Вид сделки: Предложение
- Цена: с НДС
- Форма собственности: Частная


в избранное


























