Аренда: Аренда современного офисного блока 412,3 кв.м, м.Пушкинская, Минск,
Сдается в аренду современный офисный блок 412,3 кв.м
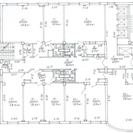
Удобная кабинетная нарезка
Качественный свежий ремонт
Комфортная обеденная зона
Несколько санузлов и отдельная душевая
Современная приточно-вытяжная вентиляция
Освещение, отопление и оптоволоконный интернет
Наземная парковка — 6 закреплённых машиномест
Отличное местоположение в развитом районе города
Отличная транспортная доступность: рядом остановки общественного транспорта, МКАД.
- Площадь: 412 м2
- Ремонт: да
- Интернет: да
- Охрана: да
- Парковка: да
- Режим работы здания: 24/7
- Близость к метро: Пушкинская
- Регион: Минск и район
- Населенный пункт: Минск
- Район: Фрунзенский
- Микрорайон: Пушкина
- Адрес: ОЛЬШЕВСКОГО 22
- Контактное лицо: Ирина
- Вид сделки: Предложение
- Цена: без НДС
- Форма собственности: Частная


в избранное





























