Аренда: Аренда VIP офиcа с отдельными входами, зеленой зоной, отдельными парковками, душевой, сайной, кухней г. Минск, ул. Восточная, 133, Минск,
Уважаемые директора компаний, уважаемые руководители представительств иностранных фирм и консульств!
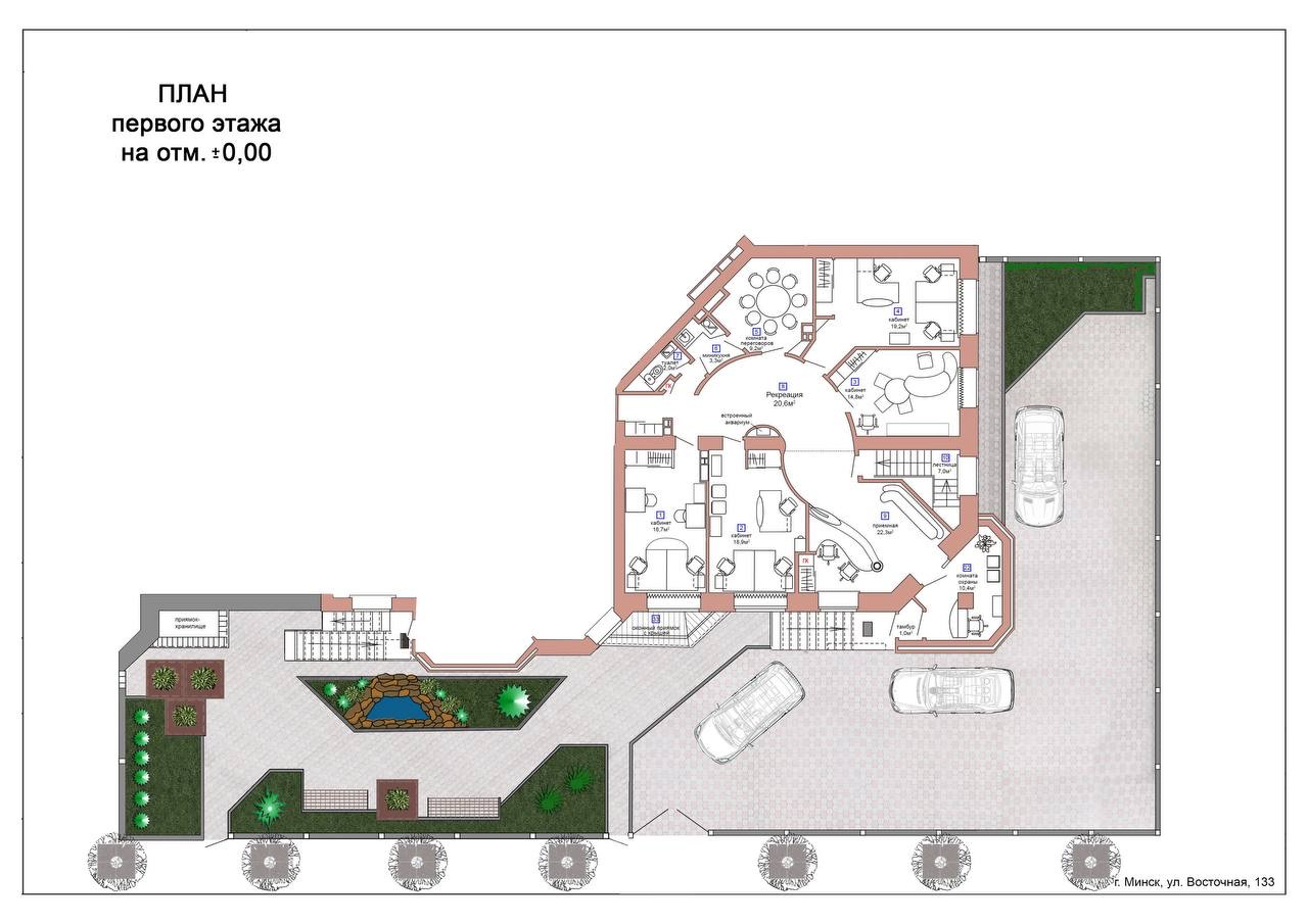
У вас появилась уникальная возможность снять в аренду (от собственника) прекрасный офис по улице Леонида Беды (адрес: Восточная, 133) со своим двориком и автостоянкой, в котором ранее располагалось посольство дружественной нам страны.
Внутренние помещения площадью 216 кв. м, в том числе: первый этаж 140 м, цокольный (естественное освещение) этаж 76 кв. м, включают, кроме офисов, комнаты охраны, отдыха, переговоров, две мини кухни, сауна, душевая, большое помещение для совещаний, которое можно использовать как шоурум. Во всех помещениях освещение светодиодное, практичная офисная мебель, роллеры на окнах, скоростной интернет, настенные часы, кондиционеры.
Дворик площадью 400 кв. м оборудован автоматическими въездными воротами, входными калитками, прожекторами с датчиками движения, системами видеонаблюдения. На территории имеются небольшие газоны, перголы со скамейками, флагштоки, индивидуальные парковочные места на территории офиса и т. д.
Рядом развитая инфраструктура, офисные центры, множество магазинов. Выгодное месторасположение.
Возможна аренда меньшей площади.
- Год постройки: 2012
- Площадь: 140 м2
- Этаж: 1
- Ремонт: идеальный евроремонт
- Интернет: оптоволоконный высокоскоростной
- Охрана: да
- Парковка: да
- Количество телефонов: много
- Режим работы здания: 24/7
- Близость к метро: Академия наук
- Питание: кафе
- Регион: Минск и район
- Населенный пункт: Минск
- Район: Советский
- Микрорайон: Леонида Беды
- Адрес: ВОСТОЧНАЯ 133
- Собственник, физ. лицо
- Контактное лицо: Андрей
- Телефон: +375 29 612-74-76

- E-mail: mynedviz@gmail.com
- Телефон: +375 29 612-74-76
- Вид сделки: Предложение
- Цена: без НДС
- Форма собственности: Частная
- Тип договора: прямая аренда
- Стоимость коммунальных услуг
(за все помещение):В отопительный сезон: 1 руб.В неотопительный сезон: 1 руб.


в избранное



























