Аренда: Офис 123,3кв.м. ул. Ленина д. 50, минск,
Арендатор не оплачивает услуги агентства!
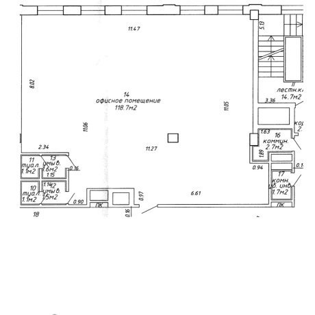
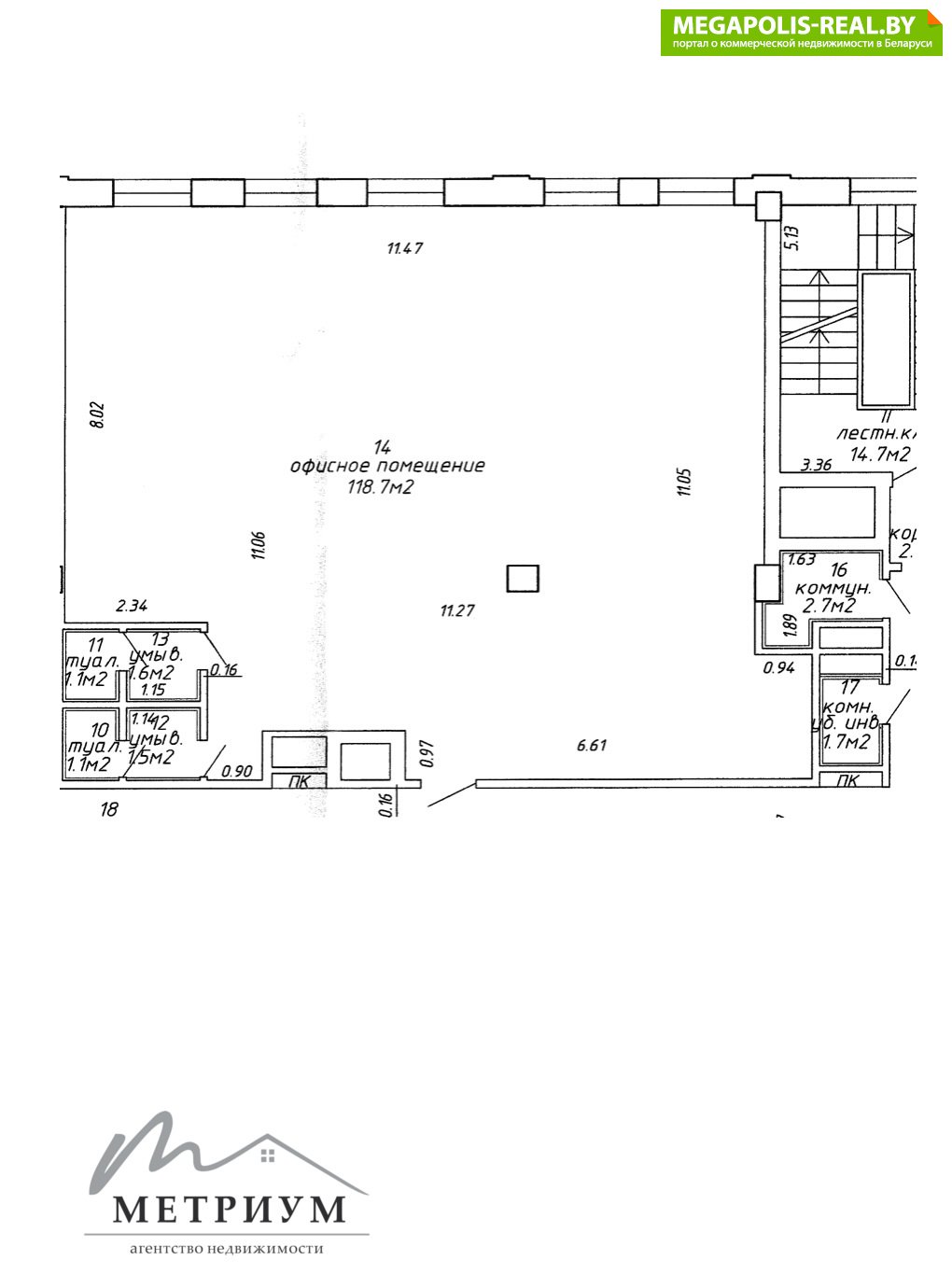
Предлагаем в аренду помещение под офис либо сферу услуг. Объект площадью 123,3кв.м., находится в живописном районе, на 2-м этаже 5-ти этажного Бизнес Центра, по ул. Ленина д.50. Развитая инфраструктура, множество пунктов общественного питания рядом. Офис в шаговой доступности от станций метро "Пролетарская" и "Первомайская. Удобные подъездные пути к зданию. Ремонт современный, имеются перегородки, своя зона приема пищи, частично с мебелью. Уборная с водой в помещении. Доступ 24/7. 2-ва входа. Хорошая парковка в близи здания.
Договор № 180/1а от 15.07.2025
ООО Агентство недвижимости «Метриум»
УНП 193581536
Лицензия № 02240/425, выдана Министерством Юстиции РБ 27.08.2021
- Год постройки: 2016
- Площадь: 123 м2
- Этаж: 2
- Ремонт: есть
- Парковка: да
- Режим работы здания: 24/7
- Близость к метро: Пролетарская
- Питание: магазин
- Бизнес-центр: Ленина, 50
- Регион: Минск и район
- Населенный пункт: минск
- Район: Ленинский
- Микрорайон: Пролетарская
- Адрес: ЛЕНИНА 50
- Контактное лицо: Метриум
- Телефон: +375 29 613-65-96
- E-mail: metrium.real@gmail.com
- Телефон: +375 29 613-65-96
- Вид сделки: Предложение
- Цена: с НДС
- Форма собственности: Частная


в избранное































