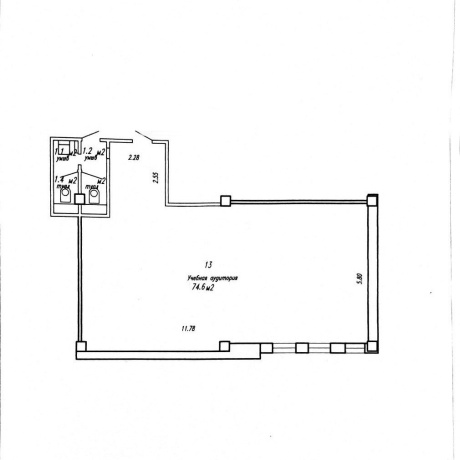
Аренда: Офис 74,6 м2 (аренда) ул Тимирязева 65Б, Минск,
Детали объекта:
· Общая площадь: 79,6 м2
· Площадь кабинета: 74,6 м2
· Этаж: 10 из 16
· Ремонт: Первичный
Коммуникации:
· Приточно-вытяжная вентиляция
· Отопление
· Освещение
· Оптоволокно (интернет)
· Санузлы: собственный в помещении + дополнительный на этаже.
Инфраструктура и локация:
· Удобные подъездные пути. Рядом остановки:
Общественный трансппорт к ключевым станциям метро «Молодежная», «Немига», «Фрунзенская», «Пушкинская», «Спортивная».
· Паркинг: Закрытый паркинг с удобным выходом (пульт передаётся) + открытая парковка у здания.
· В шаговой доступности: отделение банка, медицинские центры, отель, магазины, кафе, кофейни, рестораны, аптеки, заправка.
· Собственник передаёт пульт от системы доступа в паркинг и почтовый ящик.
· Покупатель не оплачивает услуги агентства!
- Год постройки: 2010
- Площадь: 74 м2
- Этаж: 10
- Ремонт: нормальный
- Парковка: да
- Количество телефонов: 1
- Близость к метро: Молодежная
- Бизнес-центр: Тимирязева 65Б
- Класс бизнес-центра: C
- Регион: Минск и район
- Населенный пункт: Минск
- Район: Центральный
- Микрорайон: Тимирязева
- Адрес: ТИМИРЯЗЕВА 65б
- Контактное лицо: Вероника
- Телефон: +375 29 380-85-85
- E-mail: marielt.komm@mail.ru
- Телефон: +375 29 380-85-85
- Вид сделки: Предложение
- Цена: без НДС
- Форма собственности: Частная
- Стоимость коммунальных услуг
(за все помещение):В отопительный сезон: - руб.В неотопительный сезон: - руб.


в избранное


























































