Аренда: Офис + склад = 145 м2., Минск,
Предлагаем в аренду помещение на цокольном этаже.
Ул. Стариновская 21.
Станция метро Уручье – 5 минут пешком.
Рядом остановки общественного транспорта.
Помещение находится на цокольном этаже жилого 5-ти этажного кирпичного дома.
Отдельный вход,
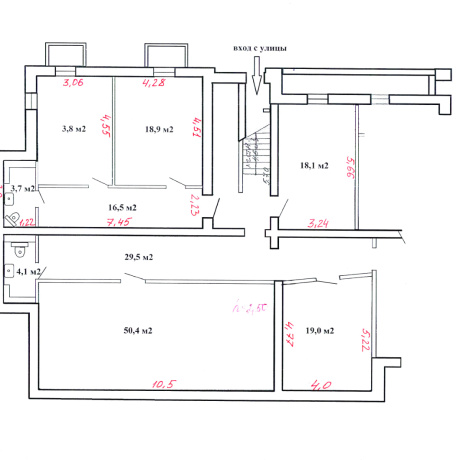
Общая площадь помещения 145,0 м2.
Всего 5 помещений:
- 52,5 м2 – блок – 2 кабинета (13,8 м2 и 18,9 м2) + свой с/у – помещение изолировано от всех остальных помещений.
- 18,1 м2 - отдельный кабинет с окном – есть вывод холодной и горячей воды и канализации.
- 19,0 м2 - отдельный кабинет 19,0 м2 нет окон – есть вывод холодной и горячей воды и канализации.
- 50,4 м2 – помещение без перегородок – есть вывод холодной и горячей воды и канализации, нет окон, рядом с/у, можно использовать под офис/склад/хранение.
В помещениях сделан ремонт, есть 2 с/у, естественное освещение, электричество, выводы воды и канализации в части кабинетов.
- Площадь: 145 м2
- Интернет: есть
- Близость к метро: Уручье
- Питание: кафе
- Регион: Минск и район
- Населенный пункт: Минск
- Район: Первомайский
- Микрорайон: Уручье
- Адрес: СТАРИНОВСКАЯ 21
- Собственник, юр. лицо: Автопривал
- Контактное лицо: Ольга
- Вид сделки: Предложение
- Цена: с НДС
- Форма собственности: Частная
- Тип договора: прямая аренда
- Стоимость коммунальных услуг
(за все помещение):В отопительный сезон: 600 руб.В неотопительный сезон: 380 руб.


в избранное


































