Аренда: Офис в аренду от Собственника от 300 м2 до 790,4 м2., Минск,
Офис - Беды 2.
от 300 м2 до 790 м2
От Собственника – без посредников!
Стоимость аренды квадратного метра 8 евро в том числе НДС – 20%, гибкость в переговорах.
Помещение:
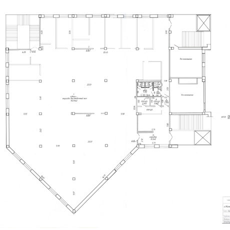
- 4 этаж всего 790,42 м2 - возмождно разделить на 2 части.
приточно-вытяжная система вентиляции, все коммуникации, с/у на этажах, присутствует как кабинетная система, так и система open space.
Есть пассажирский и грузовой лифт, широкая лестница (доступ в помещения с трех сторон здания), просторные коридоры.
Ремонт. Современные Лифты. Круглосуточный пост охраны.
Преимущества:
- круглосуточный доступ;
- подземная и наземная парковка;
- круглосуточный прием заявок по эксплуатации (если что-то ломается / не открывается и т.д.);
- оптоволокно;
- приточно-вытяжная система вентиляции;
- рядом остановки общественного наземного транспорта, метро «Академия наук» -15 минут пешком или 2 остановки на транспорте;
- отличные подъездные пути (заезд с улицы Сурганова и с ул. Беды);
-отделка;
- Рядом сквер с благоустроенными дорожками для прогулок;
- в соседних зданиях расположены продуктовые магазины, кафе и торговые центры, банки и медицинские центры.
Больше 10 маршрутов общественного транспорта в 3 минутах ходьбы.
На дополнительные вопросы ответим по телефону
(viber, telegram, whatsapp)
Стоимость аренды указана с НДС
- Площадь: 790 м2
- Этаж: 4
- Интернет: Есть
- Парковка: да
- Близость к метро: Академия наук
- Питание: магазин
- Бизнес-центр: Беды 2
- Регион: Минск и район
- Населенный пункт: Минск
- Район: Советский
- Микрорайон: Леонида Беды
- Адрес: Леонида Беды 2
- Собственник, юр. лицо: ЗАО
- Контактное лицо: Ольга
- Телефон: +375 29 605-42-91

- E-mail: avtoprival.v@gmail.com
- Телефон: +375 29 605-42-91
- Вид сделки: Предложение
- Цена: с НДС
- Форма собственности: Частная
- Тип договора: прямая аренда
- Стоимость коммунальных услуг
(за все помещение):В отопительный сезон: 1800 руб.В неотопительный сезон: 900 руб.


в избранное
























