код 38906A
Аренда: Помещение под офис общей площадью 150 м.2.Класс B+.Центр ул.к.Чорного 25., минск,
13.04.2026
67
Возле / у метроКабинетНедорогие офисыОфис для ITС кондиционеромС мебелью
Описание объекта
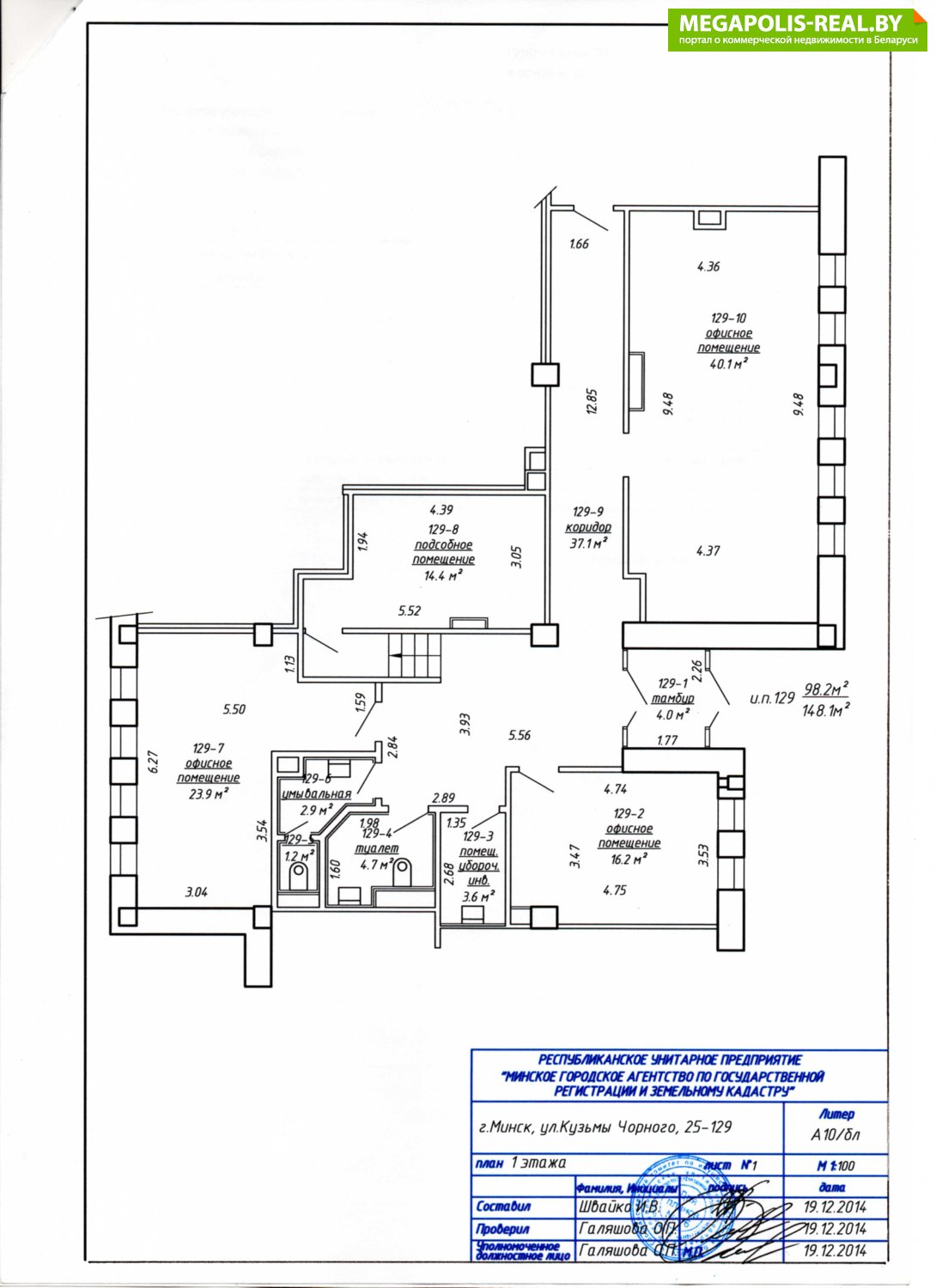
Помещение под офис общей площадью 150 м.2.Класс B+.Центр ул.к.Чорного 25. 4 -отдельных кабинета,2 санузла, отдельно кабинет обедов, отдельный вход 24/7.Кондиционер ,видеодомофон. Парковка свободная.
Параметры объекта
- Год постройки: 2020
- Площадь: 148 м2
- Этаж: 1
- Интернет: есть
- Охрана: да
- Парковка: да
- Количество телефонов: 10
- Близость к метро: Парк Челюскинцев
Местоположение
- Регион: Минск и район
- Населенный пункт: минск
- Район: Первомайский
- Микрорайон: Волгоградская, Кедышко
- Адрес: КУЗЬМЫ ЧОРНОГО 25
Контактная информация
- Контактное лицо: Василий
- Телефон: +375 80 296-11-80

- E-mail: tripuz@belpak.by
- Телефон: +375 80 296-11-80
4 144 BYN
1 480 $
1 249 €
28 BYN/M2
10,00 $/M2
8,44 €/M2
- Вид сделки: Предложение
- Цена: с НДС
- Форма собственности: Частная
- Тип договора: прямая аренда
- Стоимость коммунальных услуг
(за все помещение):В отопительный сезон: 900 руб.В неотопительный сезон: 500 руб.
Поделиться в соцсетях


в избранное













