Аренда: Сдаётся нежилое помещение в Минске, Минск,
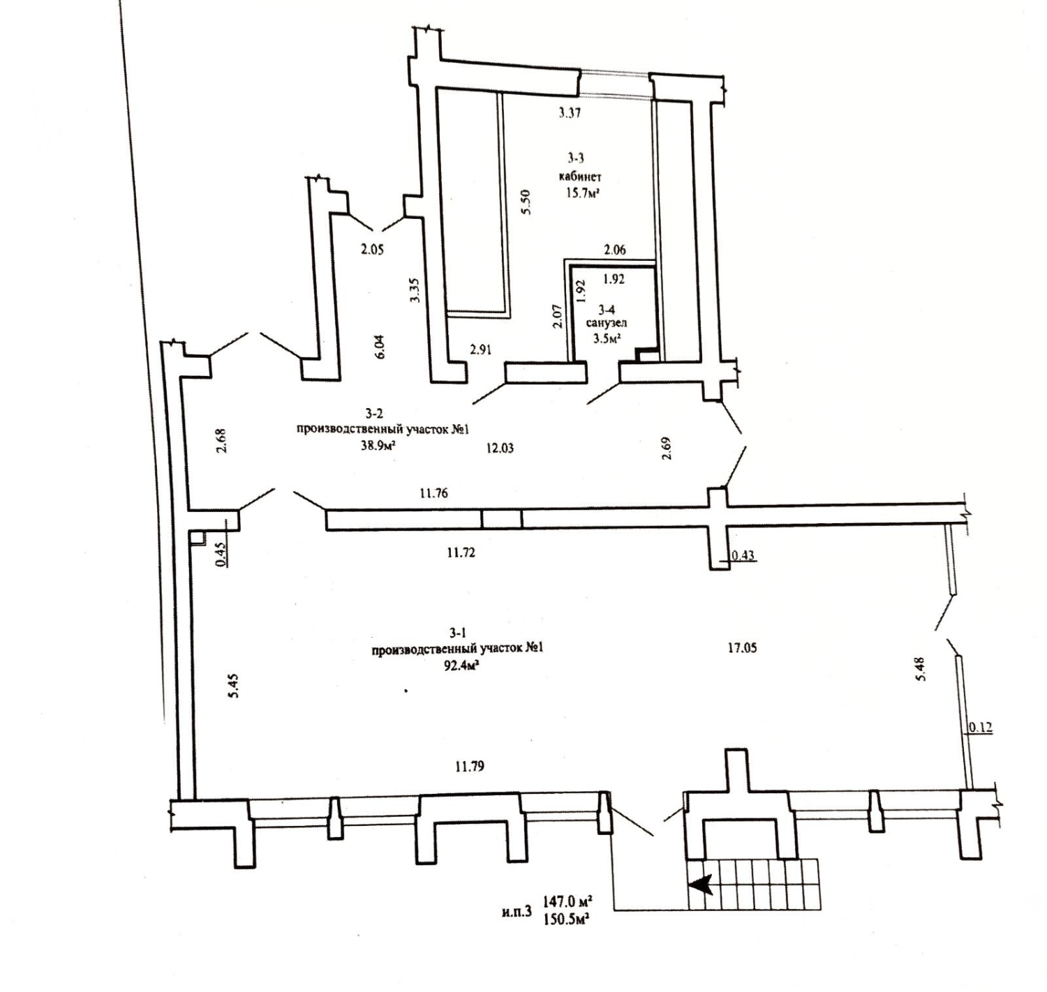
Сдаётся помещение с отдельным входом по адресу: ул. Тимирязева, 9, корп. 11, общей площадью 150,5 кв.м. под офис / магазин / производство / сферу услуг или прочий бизнес.
Помещение на 1 этаже (из 5). Недалеко ст.метро Молодежная и ст.метро Фрунзенская, рядом "Корона" на Кальварийской. В помещении находится узел пожарной сигнализации.
- Год постройки: 1976
- Площадь: 150 м2
- Этаж: 1
- Ремонт: Хороший
- Интернет: -
- Охрана: нет
- Парковка: да
- Близость к метро: Молодежная
- МФК: Тимирязева ул., д. 9 к. 10
- Регион: Минск и район
- Населенный пункт: Минск
- Район: Центральный
- Микрорайон: Тимирязева
- Адрес: Тимирязева ул д. 9 к. 10
- Контактное лицо: Степан Викторович
- Вид сделки: Предложение
- Цена: с НДС
- Форма собственности: Частная
- Стоимость коммунальных услуг
(за все помещение):В отопительный сезон: 300 руб.В неотопительный сезон: 240 руб.


в избранное

















