Аренда: Сдается офисное помещение по адресу г. Минск, Чюрлениса ул., д. 24, г. Минск,
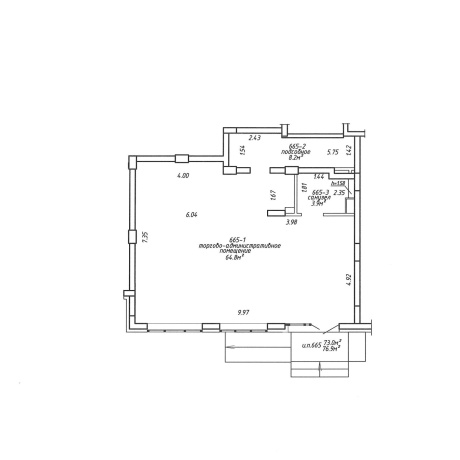
Аренда помещения на первом этаже жилого домаАдрес: г. Минск, ул. Чюрлениса д. 24Площадь: 68,5 м2Цена: 12 €/м2 с НДСХарактеристики:- Помещение расположено на первом этаже жилого дома- Удобная локация- Плотная жилая застройка- Доступ 24/7- Высокие потолки, санузел- Пожарная сигнализация- Видеонаблюдение- Приточно-вытяжная вентиляция- Освещение, отопление, высокоскоростной интернет- Наземная просторная парковка- Удобные подъездные пути– Рядом с домом остановки общественного транспорта, станции метро «Малиновка» и «Петровщина» в шаговой доступности, 2 остановки до проспекта Дзержинского.Удобный выезд на МКАД. Через дорогу расположен Студенческий городок БГУ.Помещение идеально подойдет для размещения офиса, пункта выдачи, салона красоты, сферы услуг и других видов деятельности. В шаговой доступности парк, зоны отдыха разной направленности.Также в аренду предлагаются площади 90,6 кв.м., 76,9 кв.м, 76,9 кв.м.Арендатор не оплачивает услуги риэлтерской организации!Ваш агент – Адамович ЕвгенийПрисоединяйтесь к нам в соцсетях:Договор № 81/3а от 25.06.24 по 24.06.26ООО «Сильван-Инвест», УНП 192927433, лицензия №02240/383, Министерство юстиции РБ, 24.09.2019.
- Площадь: 69 м2
- Интернет: есть
- Режим работы здания: 24/7
- Близость к метро: Малиновка
- Питание: магазин
- Регион: Минск и район
- Населенный пункт: г. Минск
- Район: Московский
- Микрорайон: Брилевичи
- Адрес: Чюрлениса ул. д. 24
- Контактное лицо: ООО "Сильван-Инвест"
- Телефон: +375 44 780-08-63
- Телефон: +375 44 780-08-63
- Вид сделки: Предложение


в избранное


























