Аренда: Сдается офисное помещение по адресу г. Минск, Коласа ул., д. 37, г. Минск,
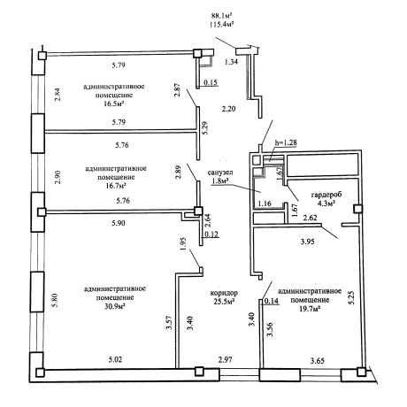
Сдается офис в центре по адресу: Коласа 37 Бизнес-центр АЙСБЕРГ. 4 отдельных кабинета. Свой сан/узел. В каждой комнате есть кондиционер. Сделан ремонт. Дополнительных вложений не требуется.
Лицензия: 02240/446 от 11.07.2022, Министерство юстиции РБ
- Площадь: 115 м2
- Ремонт: есть
- Интернет: есть
- Парковка: да
- Режим работы здания: 24/7
- Близость к метро: Академия наук
- Питание: магазин
- Контактное лицо: Фаттория
- Телефон: +375 44 703-94-99
- Телефон: +375 44 703-94-99
- Вид сделки: Предложение


в избранное

































