Аренда: Сдается офисное помещение по адресу г. Минск, Литературная ул., д. 27, г. Минск,
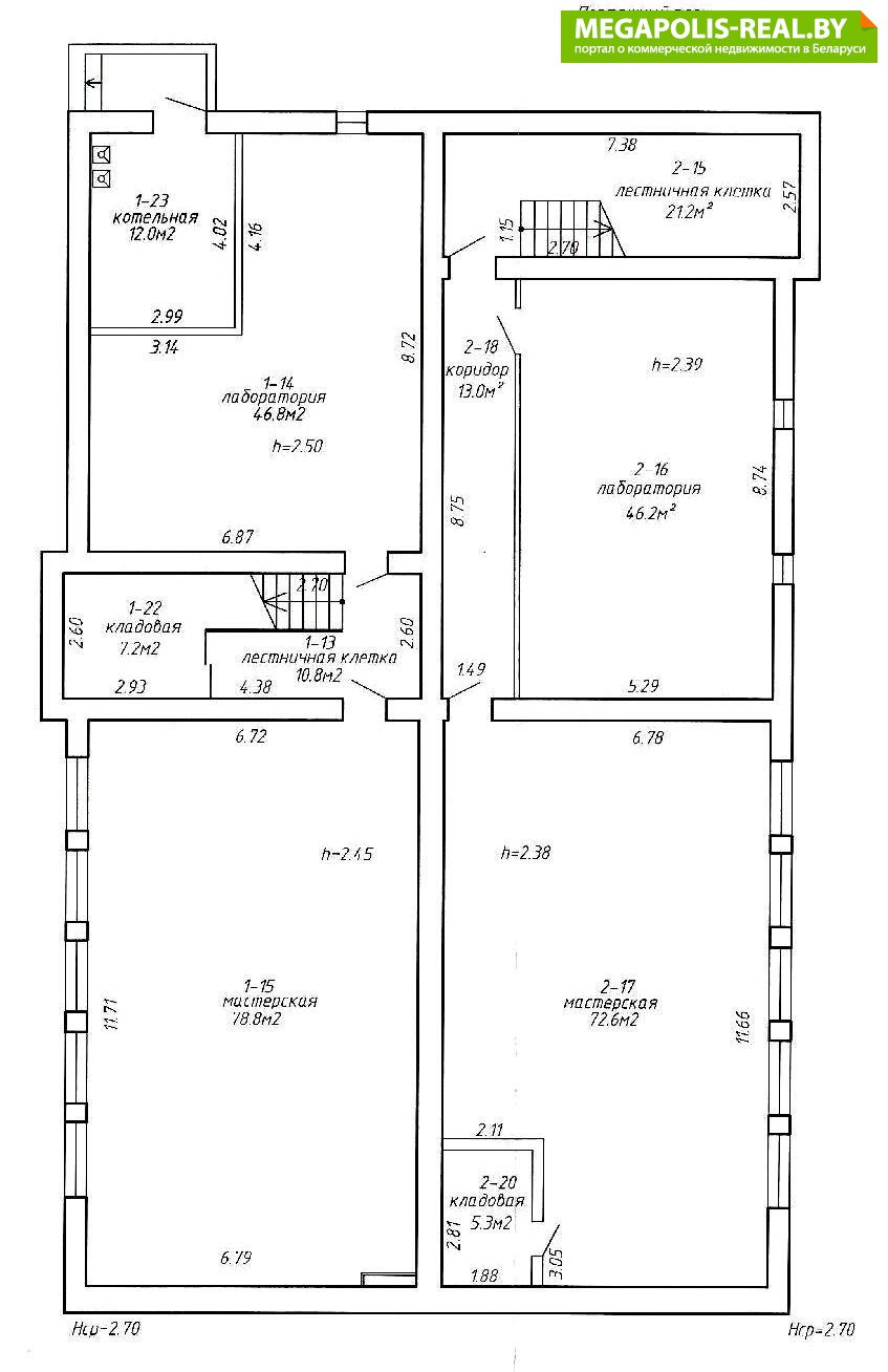
Предлагаем в аренду помещения под небольшое производство или под склад в цоколе с площадью 46,8м2 (лаборатория) и 78,8м2(мастерская) в доме по ул.Литературная,27
Есть своя отдельная парковка.
Есть все коммуникации- отопление, свет, вода, канализация.
Удобно размещать как под небольшое производство, так и под склад
Удобная локация и недалеко остановка общественного транспорта.
Также доступно к сдаче полдома общей площадью 387.7 м2 (1 и 2 этажи+цоколь).
Лицензия: 02240/446 МЮ РБ, 11.07.2022
- Площадь: 126 м2
- Регион: Минск и район
- Населенный пункт: г. Минск
- Адрес: Литературная ул. д. 27
- Контактное лицо: Дмитрий
- Телефон: +375 29 653-98-53
- Телефон: +375 29 653-98-53
- Вид сделки: Предложение


в избранное

























