Аренда: Сдается офисное помещение по адресу г. Минск, Маркса ул., д. 20, г. Минск,
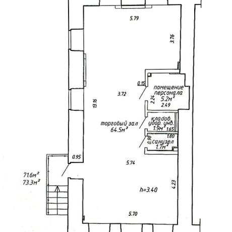
Сдается помещение в аренду по ул. К.Маркса 20 административно-торговое площадью 73,3м2.
В центре города с удобной локацией для любого вида деятельности начиная от офиса, бьюти, турагентства и кафе.
Есть отдельный санузел, кондиционер, отдельный вход 24/7.
Отличный, современный ремонт.
Арендатор услуги агентства не оплачивает.
Лицензия: 02240/446 МЮ РБ, 11.07.2022
- Площадь: 73 м2
- Регион: Минск и район
- Населенный пункт: г. Минск
- Микрорайон: Ленина
- Адрес: Маркса ул. д. 20
- Контактное лицо: Дмитрий
- Вид сделки: Предложение


в избранное







































