Аренда: Сдается офисное помещение по адресу г. Минск, Сторожовская ул., д. 6, г. Минск,
Аренда офисов в бизнес-центре «Стратег» по адресу: ул. Сторожовская, 6.
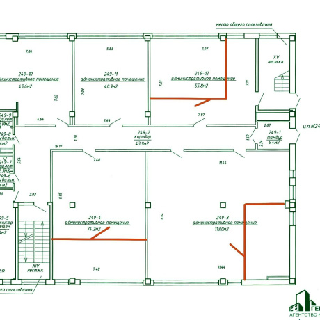
Сдаются в аренду следующие помещения:
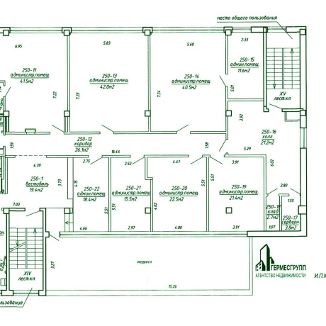
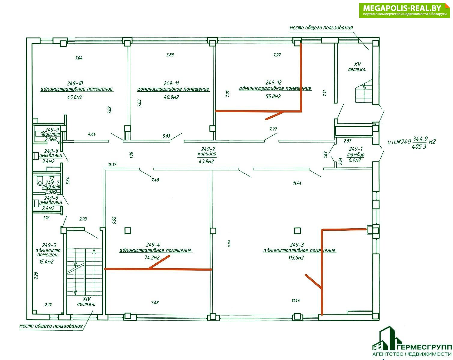
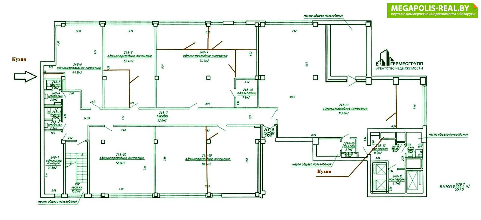
1-й этаж, офисные помещения площадью 44,8 м2, 169,7 м2, стоимость – 57 бел.руб. за 1 м2, без НДС. 2-й этаж, офисные помещения площадью 45,6 м2, 40,9 м2, 74,2 м2 стоимость – 57 бел.руб. за 1 м2, без НДС. 3-й этаж, офисные помещения сдаются этажом, с террасой, своей группой с/у, ресепшеном общая площадь 312 м2, помещения площадью от 11,6 – стоимость 57 бел.руб. за 1 м2 без НДС. Формат этажей - «кабинетная система». Дополнительно на этаже: помещение под кухню, сан узлы, душевая.
Отделка офиса:
напольное покрытие: ковролин стены: окрашены потолок: подвесной типа «Armstrong» Инженерные системы и коммуникации:
выполнена разводка силовых и слаботочных сетей из расчёта 3 кв.м/чел; климат-контроль, который поддерживается посредством систем кондиционирования и приточно-вытяжной вентиляцией с рекуперацией воздуха; серверная; центральное отопление; два санузла; пожарно-охранная сигнализация; карт-доступ в БЦ и на этаж; доступ 24/7. Парковка:
Паркинг на 12 машиноместа под БЦ – первый уровень и 10 машиномест в паркинге под жилым домом, распределение пропорционально занимаемой площади, на платной основе.
Транспортное сообщение:
Удобная транспортная доступность. Ст. метро «Немига» в пешей доступности по набережной реки Свислочь.
- Площадь: от 11,6 м2 до 169,7 м2
- Этаж: 1
- Ремонт: Есть
- Интернет: Есть
- Охрана: да
- Парковка: да
- Режим работы здания: 24/7
- Близость к метро: Немига
- Питание: магазин
- Контактное лицо: Дмитрий
- Телефон: +375 29 784-89-32
- Телефон: +375 29 784-89-32
- Вид сделки: Предложение


в избранное











































































