Аренда: Сдается офисное помещение по адресу Минск, Дзержинского просп., 69 2, Минск,
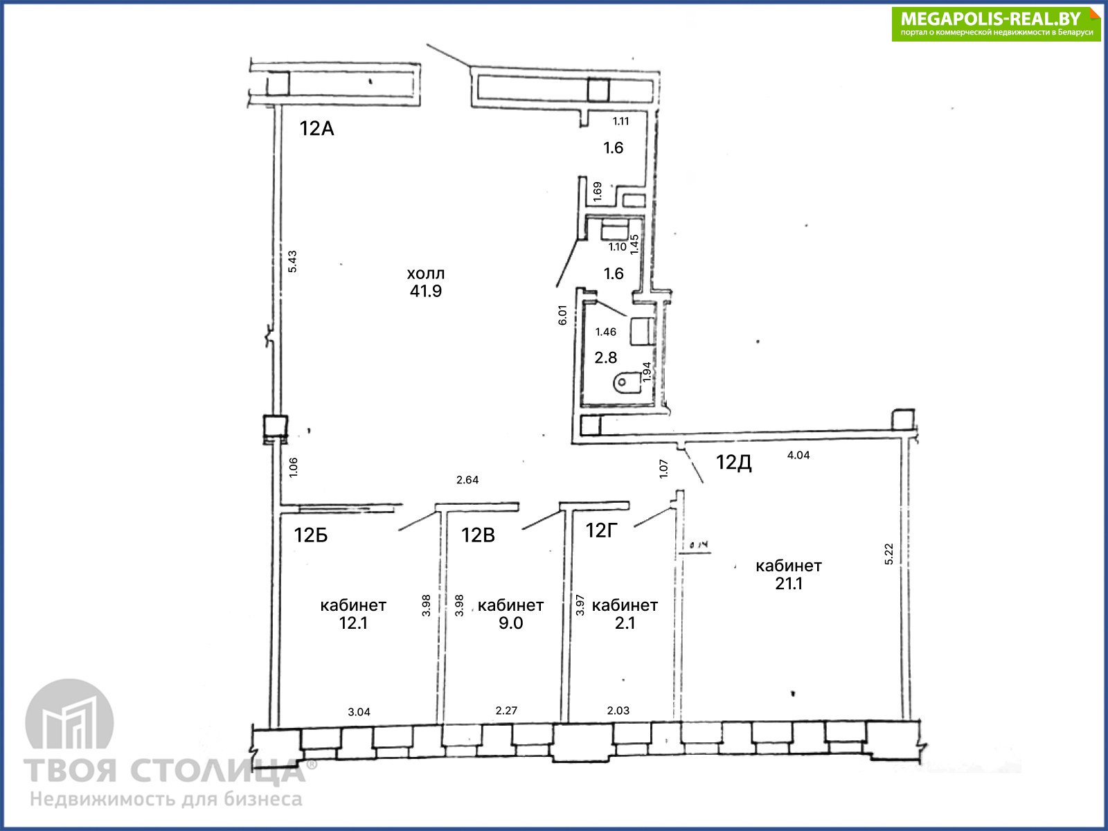
Аренда офиса 98.2 кв.м. по п-ту Дзержинского 69/2. на первом этаже БЦ "Шик". 4 отдельных кабинета, оборудована кухня, собственный сан/узел. Офис сдается с мебелью, полностью укомплектован ( столы, стулья, шкафы) . Формат - кабинетная система, с выделенной переговорной комнатой.- Приточно-вытяжная вентиляция- Интернет - Оптоволокно- Подвод воды и канализации.Доступ в здание 24/7. Отличная транспортная доступность, расположение на проспекте Дзержинского, ст.м. "Петровщина" - рядом. Развитая социальная инфраструктура комплекса - продовольственные магазины (Евроопт), точки общественного питания, банки. Наличие бесплатной парковки . Собственник помещения - Юр. лицо, НДС=0.Арендатор не оплачивает услуги агентства.
- Площадь: 98 м2
- Ремонт: есть
- Интернет: есть
- Близость к метро: Петровщина
- Питание: магазин
- Контактное лицо: Кирилл Ракицкий
- Вид сделки: Предложение
- Тип договора: прямая аренда


в избранное



































