Продажа / Покупка: Офис 71,5 м2 (продажа) Филимонова 25Б, Минск,
Продажа коммерческого помещения по адресу Филимонова 25 Б! Административное помещение общей площадью - 71,5 м², располагается на 1-м этаже с отдельным входом. Оживленная локация, рядом остановки общественного транспорта, 650 метров до станции метро «Московская», 1000 метров «Парк Челюскинцев».Первый этаж бизнес-центра с отдельным входом.
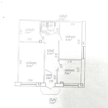
Офис включает в себя:
• 4 помещениям (11,0 м²; 18,8 м²;7,8 м²; 16,9 м²), сан. узел.
• Отличный ремонт;
• Естественное освещение;
• 1-й этаж/отдельный вход;
• Сан. узел;
• Доступ в помещение 24/7;
• Подъездные пути/парковка.
Проведены коммуникации: электроснабжение, вода, отопление, канализация, скоростной интернет, компьютерная сеть.
Покупатель не платит комиссию агентству!
Готовы рассмотреть Ваши предложения.Звоните!
- Год постройки: 2009
- Площадь: 71 м2
- Этаж: 1
- Ремонт: хороший
- Интернет: скоростной интернет
- Парковка: да
- Количество телефонов: 1
- Близость к метро: Московская
- Контактное лицо: Кристина
- Телефон: +375 29 380-85-85
- E-mail: marielt.komm@mail.ru
- Телефон: +375 29 380-85-85
- Вид сделки: Предложение
- Цена: без НДС
- Форма собственности: Частная
- Стоимость коммунальных услуг
(за все помещение):В отопительный сезон: - руб.В неотопительный сезон: - руб.


в избранное









































