Продажа / Покупка: Офис в БЦ метро Площадь Победы, Минск,
Продается отдельный офис
5 этаж
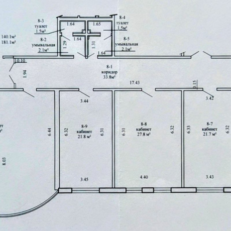
181,1 м2 площадь
бизнес-центр с паркингом пер. Козлова 7
метро Площадь победы
цена 570 евро/м2.
- планировка отличная: левое крыло 5-го этажа с отдельным входом, 5 изолированных кабинетов и 2 санузла.
- ремонт хороший, столы остаются, вентиляция приточно-вытяжная, освещение, 1-2 окна во всех кабинетах, панорамное эркерное окно в центральном кабинете 50,8м2, отопление, интернет (оптоволокно), 3 лифта (2 пассажирских и 1 грузовой).
- расположение удобное - центр города (метро Площадь Победы - 3 остановки и Тракторный завод - 1 остановка).
- парковка: места для парковки для ваших сотрудников и клиентов, а также есть паркинг.
- доступ круглосуточный при необходимости для рабочих процессов.
- пост охраны на 1-м этаже для обеспечения порядка и безопасности вашей работы.
В Бизнес-центре на 1-м этаже есть кофейня самообслуживания с ароматным кофе, кафе-столовая (где вкусно, быстро и бюджетно можно поесть), рядом остановки общественного транспорта, страховая компания, магазины, а также много других бизнесов, с которыми вы можете организовать партнерство.
Это то, что вы искали для вашего успешного бизнеса, в том числе для сдачи в аренду.
Звоните, покажем в удобное для вас время.
- Год постройки: 2007
- Площадь: 181 м2
- Этаж: 5/10
- Интернет: есть
- Близость к метро: Площадь Победы
- Регион: Минск и район
- Населенный пункт: Минск
- Район: Партизанский
- Микрорайон: Козлова, Захарова
- Адрес: КОЗЛОВА 7
- Контактное лицо: Центр недвижимости Эксклюзив
- Телефон: +375 29 640-48-76
- E-mail: exclusive.office.minsk@mail.ru
- Телефон: +375 29 640-48-76
- Вид сделки: Предложение
- Цена: без НДС
- Форма собственности: Частная
- Тип договора: продажа объекта
- Стоимость коммунальных услуг
(за все помещение):В отопительный сезон: 200 руб.В неотопительный сезон: 100 руб.


в избранное










