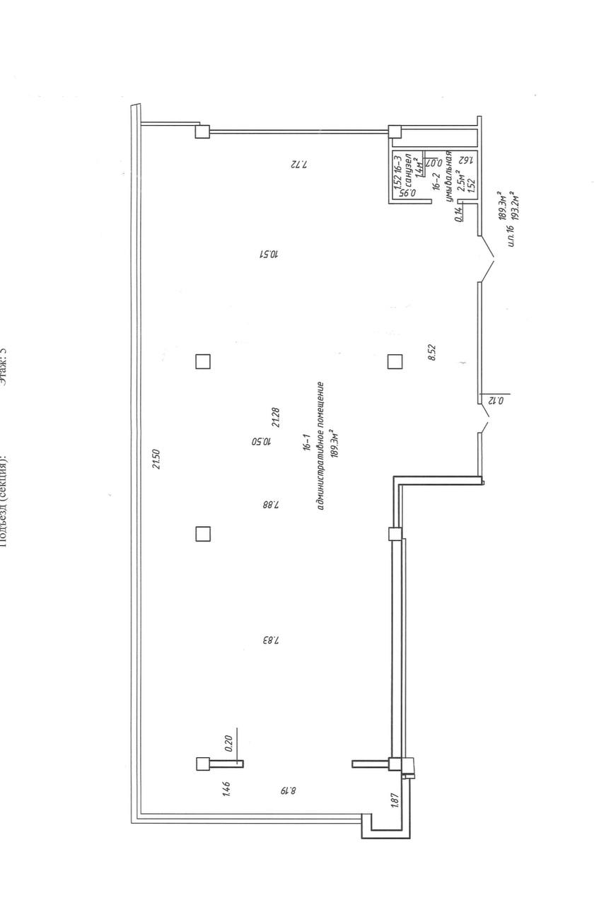
Продажа / Покупка: Офисные помещения 193м2 , Минск,
5 этаж БЦ Ocean
- светлое, просторное помещение со свободной планировкой
- панорамное остекление
- имеется освещение, свой санузел с подводом воды
Бизнес центр Океан — ваш шанс открыть или расширить бизнес в самом сердце Минска!
Удобное расположение между Renaissance Minsk Hotel и Rubin Plaza, шаговая доступность от метро Грушевка и Площадь Богушевича, отличная транспортная развязка.
Светлое, просторное помещения с гибкой планировкой.
Подземный паркинг, высокая проходимость и выгодные условия для новых арендаторов.
Ваш бизнес — на волне успеха
Контакты:
тел: +375 (29) 366 98 17
e-mail: arenda.ocean@gmail.com
- Площадь: 193 м2
- Ремонт: есть
- Интернет: есть
- Охрана: да
- Парковка: да
- Режим работы здания: 24/7
- Близость к метро: Грушевка
- Питание: магазин
- Помещение с арендаторами: Да
- Собственник, юр. лицо: ИООО "РМ Инвестмент"
- Контактное лицо: Ольга
- Телефон: +375 29 660-82-08

- E-mail: work.marketing.ocean@gmail.com
- Телефон: +375 29 660-82-08
- Вид сделки: Предложение
- Цена: без НДС
- Форма собственности: Частная
- Тип договора: продажа объекта
- Стоимость коммунальных услуг
(за все помещение):В отопительный сезон: 5 руб.В неотопительный сезон: 4 руб.


в избранное
























